Vendita Appartamento

Appartamento

Via Galileo Galilei, 24, Vermezzo con Zelo, Milano

Prezzo
104
mq
4
Locali
4
Camere
2
Bagni

Recensisci questo Immobile

Devi essere registrato per lasciare una recensione.

Accedi

Nessuna recensione ancora. Sii il primo!

Descrizione

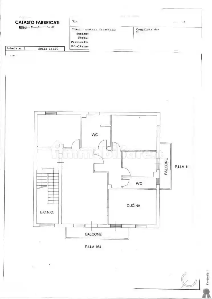
Appartamento - Piano Terreno-2°-3°Composto da: n. 2 locali, cucina, n. 1 bagno, n. 1 balcone al piano secondo e n. 1 locale sottotetto agibile nonabitabile al piano terzo sottotetto nonché locale cantina al piano terra. Superficie commerciale: mq 104Identificativo catastale: fg. 2, part. 210, sub. 31, cat. A/3, cl. 4, consistenza vani 4,5, superficie catastale mq79, Rendita € 290,51Tipologia Box - Piano Terreno°Superficie commerciale: mq 18Identificativo catastale: fg. 2, part. 210, sub. 35, cat. C/6, cl. 5, consistenza mq 18, superficie catastale mq20, Rendita € 42,76.

Caratteristiche

Piano 2
Ascensore Si
Riscaldamento Autonomo

Posizione

Referente

Aste Immobiliari

Storico

Pubblicato 20 Mar 2026
Aggiornato 20 May 2026
Sul mercato 61 giorni
ID Annuncio 127572738