Vendita Appartamento

Appartamento

Viale della Rimembranza, 61, Mineo, Catania

Prezzo
Buon Prezzo: 20% sotto la media
42
mq
3
Locali
2
Camere
1
Bagni

Recensisci questo Immobile

Devi essere registrato per lasciare una recensione.

Accedi

Nessuna recensione ancora. Sii il primo!

Descrizione

Riferimento: 4548255

c.da Pezza del Feo snc, 95044 Mineo Catania

Lotto: LOTTO UNICO

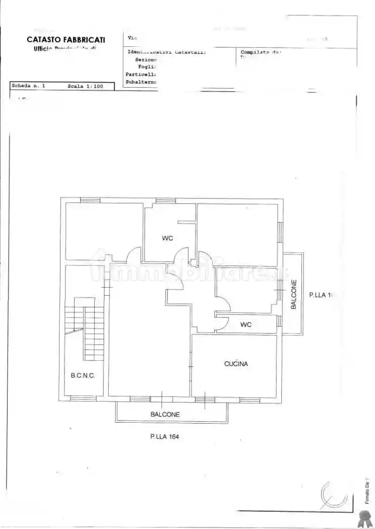
Unità immobiliare e terreni siti in Mineo c/da Pezza del Feo, individuati al C.F. al F. 61 P.lla 190 piani T e 1, categoria A/4 di classe 4, consistenza 2 vani, superficie catastale 42 mq, e al CT F. 61 p.lle 36, 56, 57, 189 (agrumeti e uliveti per complessivi Ha 1 are 74 ca 67, ovvero 17.467 mq).

Data di vendita: 14/07/2026 10:30

Offerta minima: € 16.870

Valore di stima ..40.000,00€

Studio di Fattibilità Pre-Asta

Offriamo consulenza legale completa per l'acquisto tramite asta giudiziaria.
I nostri servizi includono:

Ricerca dell'immobile secondo le esigenze del cliente
Studio di fattibilità pre-asta in fase di richiesta di visita
Studio di fattibilità del mutuo tramite banche convenzionate
Esame della perizia e documentazione correlata
Verifica legale

Preparazione e deposito delle offerte di partecipazione

Gestione della gara

Consulenza post-aggiudicazione fino all'emissione del decreto di trasferimento o del rogito

Vi invitiamo a fissare una prima consulenza gratuita presso una delle nostre 80 sedi sparse su tutto il territorio per ricevere maggiori informazioni sul processo di partecipazione ad un'asta giudiziaria, tempistiche, costi e modalità di acquisto.

Ulteriore documentazione disponibile verrà messa a disposizione durante la consulenza.

+39 06 4006 1824

Visitate il nostro sito www.asteflorio.com dove potrete trovare più di 20.000 Aste disponibili
NB: Le immagini potrebbero essere solo esempi e non rappresentare gli immobili reali. Le coordinate geografiche, fornite automaticamente da Google, possono contenere inesattezze. Segnalate eventuali errori e rimuoveremo o correggeremo gli annunci non conformi.

L'ESATTEZZA DI TUTTI I DATI PUBBLICATI INOLTRE SARA' CONFERMATA IN SEDE DI CONSULENZA.

Caratteristiche

Piano T
Ascensore No
Stato Buono / Abitabile
Riscaldamento Autonomo, a radiatori, alimentazione elettrica

Servizi e accessori

Cucina Esposizione doppia Impianto tv con parabola satellitare Infissi esterni in vetro / legno

Posizione

Referente

Aste Florio

Storico

Pubblicato 19 Mar 2026
Aggiornato 06 Apr 2026
Sul mercato 17 giorni
ID Annuncio 127608662

Recensioni

Vedi tutte
G

Giulia Lanzoni

4.0

Ricordo ancora il momento in cui ho visto il terreno e subito ho capito che era quello giusto. Sono stata subito seguita con pazienza e rapidità, trovando tutte le risposte alle mie domande senza stre...

D

Diana Geraci

4.3

Ho trovato l'investimento immobiliare perfetto grazie alla loro serietà e alla conoscenza approfondita del mercato locale. Sono stata seguita passo dopo passo, e mi hanno aiutata a fare scelte sicure...

B

Barbara Laurenti

4.0

Grazie mille per avermi seguita con tanta professionalità e competenza! Mi sono trovata davvero bene, sapevo di poter contare su un’agenzia affidabile e conosciuta bene il mercato locale, e così è sta...