Vendita Appartamento

Appartamento

Via Madre Teresa di Calcutta, Noceto, Parma

Prezzo
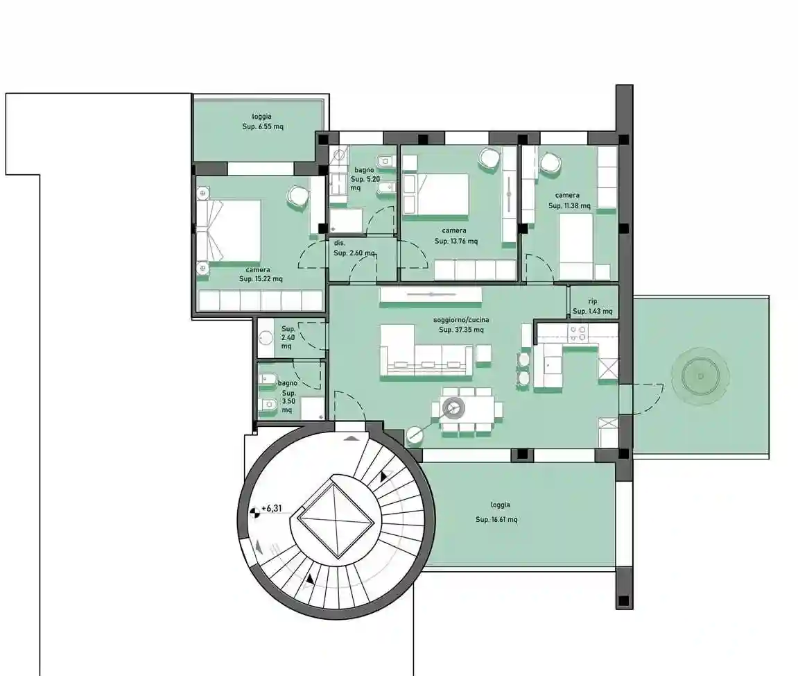
133
mq
4
Locali
3
Camere
2
Bagni

Recensisci questo Immobile

Devi essere registrato per lasciare una recensione.

Accedi

Nessuna recensione ancora. Sii il primo!

Descrizione

Siamo entusiasti di presentarvi un nuovo complesso condominiale, attualmente in costruzione e previsto per il completamento entro la fine del 2026.
Situato in una delle zone più affascinanti di Pontetaro di Noceto, un connubio perfetto tra design innovativo e sostenibilità.

Caratteristiche principali:
- Design Moderno: Linee eleganti e spazi ben progettati per un comfort senza pari.
- Elevatissime Prestazioni Energetiche: Gli appartamenti sono progettati in classe energetica A4, per garantire un'efficienza energetica ottimale, riducendo i costi e l'impatto ambientale.
- Spazi Comuni Accoglienti: Aree verdi, zone relax e spazi per attività comunitarie, pensati per favorire la socializzazione tra i residenti.

Vivi in Armonia con la Natura: Grazie all'uso di materiali eco-sostenibili e tecnologie all'avanguardia, il complesso non è solo un luogo dove abitare, ma un vero e proprio stile di vita.

Non perdere l'opportunità di essere parte di questa nuova realtà! Contattaci per maggiori informazioni e per prenotare una visita al cantiere.

Chiama il nostro ufficio di Noceto al numero 0521 1802013 !

à !

Caratteristiche

Piano 1
Ascensore Si
Riscaldamento Autonomo, a pavimento, alimentato a fotovoltaico

Servizi e accessori

Porta blindata VideoCitofono

Posizione

Referente

A CASA immobiliare

Storico

Pubblicato 01 Apr 2026
Aggiornato 26 May 2026
Sul mercato 56 giorni
ID Annuncio 127658646

Recensioni

Vedi tutte
C

Cristina Campagna

4.7

Stavo cercando di vendere un locale commerciale a Medesano e sono stata davvero felice di aver trovato un'agenzia che mi ha seguita con attenzione e professionalità. Sono molto soddisfatta del support...

C

Cristian Nardone

4.3

Ho scelto questa agenzia perché mi hanno colpito la flessibilità negli orari e la loro competenza nelle trattative. Mi hanno seguito passo dopo passo nel trovare un appartamento vista mare a Medesano,...

M

Martina Carta

4.3

Ancora ricordo come mi hanno aiutata con tanta pazienza e professionalità, riuscendo a trovare l'acquirente perfetto in tempi rapidi. La loro affidabilità e l’ampia scelta di immobili mi hanno fatto s...