Vendita Palazzo - Edificio

Palazzo - Edificio

Via roma, Monticello Conte Otto, Vicenza

Prezzo
Ottimo Affare: 49% sotto la media
1140
mq
5+
Locali
3+
Bagni

Recensisci questo Immobile

Devi essere registrato per lasciare una recensione.

Accedi

Nessuna recensione ancora. Sii il primo!

Descrizione


Operazione immobiliare nel cuore di Monticello Conte Otto

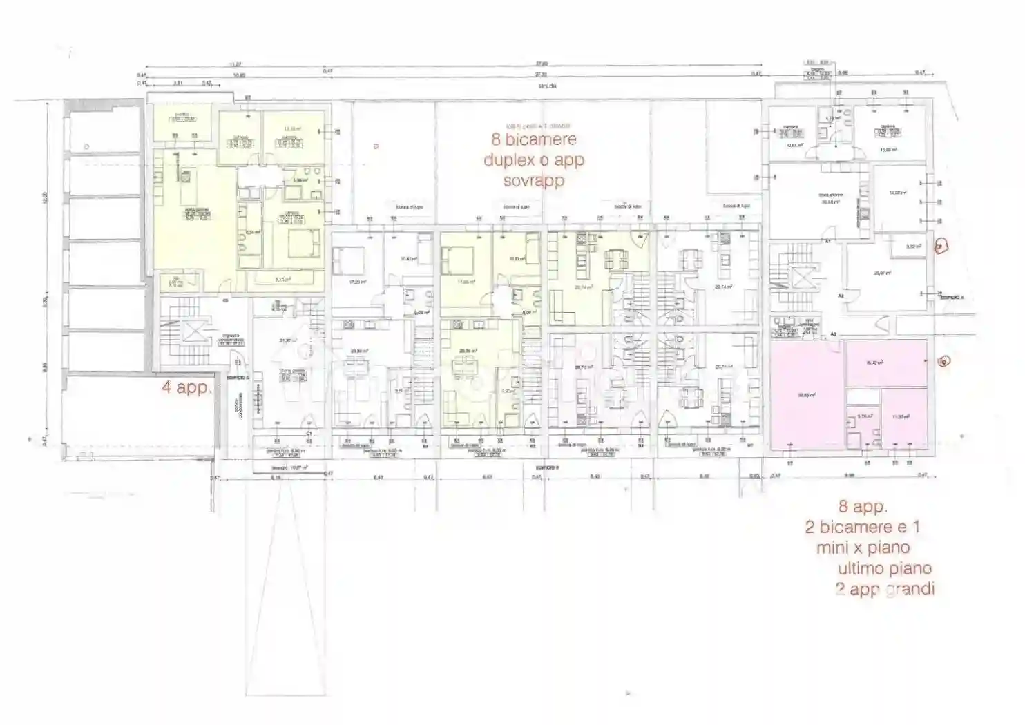
Nel pieno centro di Monticello Conte Otto, a pochi passi dal Municipio e comodo a tutti i principali servizi, proponiamo interessante lotto di terreno di 2300 mq con vecchio casolare di circa 1140mq per ricavarne delle bellissime soluzioni residenziali. I 2.300mq offrono ampi spazi per comodità di parcheggio e aree relax.

L'area rappresenta un'opportunità ideale per imprese e investitori: è già disponibile un progetto di massima che prevede la realizzazione di circa 20 unità abitative, di varie dimensioni e tipologia.

Il principale Punto di Forza è la posizione: centrale ma riservata, a soli 5 minuti da Vicenza, perfetta per un intervento destinato a famiglie che cercano tranquillità senza rinunciare alla comodità dei servizi.

Soluzione ideale per operazioni di sviluppo immobiliare in una delle zone più richieste dell'hinterland vicentino.

Caratteristiche

Ascensore No

Posizione

Referente

iad - Rosanna Dainese

Storico

Pubblicato 03 Apr 2026
Aggiornato 12 Apr 2026
Sul mercato 10 giorni
ID Annuncio 127676730

Recensioni

Vedi tutte
R

Raffaele Fiorucci

5.0

Quando ho deciso di comprare casa dopo anni di affitto, ho scelto questa agenzia perché mi hanno colpito per la loro professionalità e la rapidità con cui hanno trovato la soluzione giusta per me. Mi...

E

Elia Fontana

4.3

Durante il processo mi sono sentito molto tranquillo, perché l’agenzia ha spiegato tutto con molta chiarezza e senza far sembrare le cose complicate. Gli appuntamenti sono stati sempre puntuali, il ch...