Indietro
Vendita Casa indipendente

Casa indipendente

Via Cantalupa, 8, Frossasco, Torino

Prezzo
133
mq
4
Locali
2
Camere
2
Bagni

Recensisci questo Immobile

Devi essere registrato per lasciare una recensione.

Accedi

Nessuna recensione ancora. Sii il primo!

Descrizione

Cantalupa - in posizione tranquilla, comoda al centro del paese lo studio "Chisone Immobiliare" propone terratetto libero sui due lati completamente ristrutturato libero su due lati con giardino privato.
Il progetto prevede :
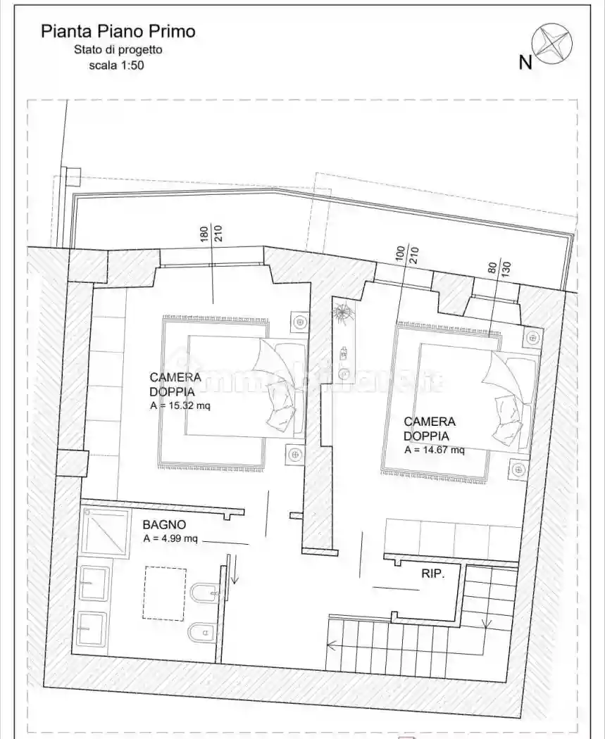
Al piano terra ingresso su zona giorno con ampio disimpegno, cucina abitabile e bagno finestrato
Al primo piano accessibile da scala interna abbiamo la zona notte composta da un disimpegno che porta a due camere da letto entrambe dotate di porta finestra con uscita sul balcone esterno e infine un bagno anch'esso finestrato
A completare la proprietà troviamo una cantina di circa 12 mq e un giardino privato di circa 150 mq insieme ad una comoda tettoia oltre ad un altro appezzamento di terreno anch'esso della stessa grandezza eventualmente usufruibile come posto auto o come orto
Per maggiori informazioni contattare il numero 0121 342792

Caratteristiche

Ascensore No
Stato Nuovo / In costruzione
Riscaldamento Autonomo, a radiatori, alimentato a metano

Servizi e accessori

Armadio a muro Esposizione interna Impianto tv singolo Infissi esterni in doppio vetro / legno Porta blindata

Posizione

Referente

Studio Roletto Chisone Immobiliare

Storico

Pubblicato 02 Apr 2026
Aggiornato 25 May 2026
Sul mercato 54 giorni
ID Annuncio 127682302

Recensioni

Vedi tutte
E

Elena Oliveri

4.7

Quello che mi ha spinto a scegliere questa agenzia è stata la loro onestà nelle valutazioni e la disponibilità a seguirmi con flessibilità negli orari, anche fuori dagli appuntamenti classici. Sono st...

N

Nunzia Furlan

4.7

Stavo cercando un investimento immobiliare a Roletto e ho trovato un’agenzia che mi ha davvero aiutata a seguire tutte le fasi con attenzione alle mie esigenze. Hanno un'ampia scelta di immobili e mi...