Vendita Appartamento

Appartamento

Via Emilia Romagna, 165, 47841 Cattolica RN, Italia, Cattolica, Rimini

Prezzo
Ottimo Affare: 62% sotto la media
215
mq
5+
Locali
8
Camere
3
Bagni

Recensisci questo Immobile

Devi essere registrato per lasciare una recensione.

Accedi

Nessuna recensione ancora. Sii il primo!

Descrizione

Ampio Appartamento in asta a Cattolica (RN) [SY610725]
Via Emilia Romagna, 165, 47841 Cattolica RN, Italia
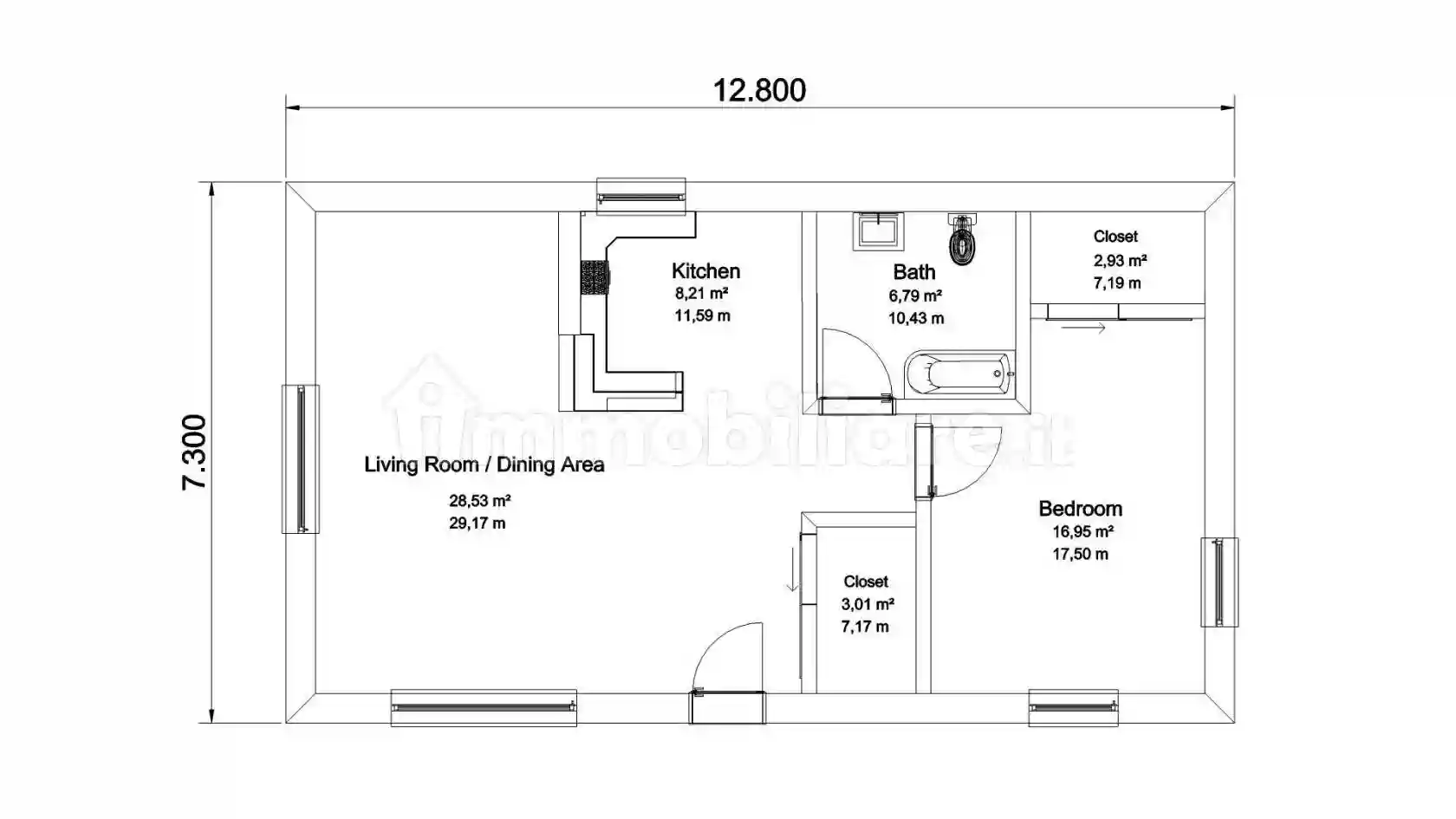
Proponiamo in vendita un appartamento di ampia metratura situato al secondo piano di un edificio residenziale a Cattolica, in zona ben servita.

L’immobile si sviluppa su circa 215 mq ed è composto da:

ingresso su soggiorno/pranzo
cucina separata
tre camere da letto
disimpegno
bagno e wc
balconi per circa 25 mq

Proposta immobiliare in asta. Info dettagliate in agenzia o telefonicamente.

Possibilita’ di Mutuo al 100%

Per maggiori informazioni puoi contattare il nostro referente di zona
Valentina Cantelli Ag. Centro Aste Fil. Rimini 3716417762
immobiliarecentroasterimini@gmail.com

SU QUESTO IMMOBILE E’ POSSIBILE:

- Mutuo al 100%
- Visita Interni
- NO Oneri Notarili
- Nessuna Ipoteca
- Agevolazione Prima Casa

Le foto pubblicate potrebbero non corrispondere all'immobile specifico, i documenti ufficiali sono visionabili in filiale.

CENTRO ASTE OFFRE I SEGUENTI SERVIZI:

1. PRIMA CONSULENZA
Appuntamento presso una delle 50 Filiali in Italia per offrire chiarimenti sulle aste ed ascoltare le tue esigenze immobiliari.

2. MEDIAZIONE CREDITIZIA
Servizio esclusivo ad alto valore aggiunto, proponendo un ventaglio di prodotti tra i più completi con studio fattibilità per la partecipazione in asta con mutuo fino al 100%

3. ASSISTENZA TECNICO - LEGALE
- Ricerca Immobili ed invio settimanale per email
- Studio della perizia e della documentazione
- Accertamenti catastali per eventuali abusi edilizi
- Accompagnamento Visita Immobile
- Disbrigo pratiche per la partecipazione
- Rappresentanza Legale il giorno della vendita
- Rilascio del decreto di trasferimento in tempi brevi
- Assistenza per il Saldo Prezzo
- Compilazione F24 per Tasse
- Disbrigo Pratiche per Eventuale Sanatoria
- Assistenza alla Consegna Immobile

Per maggiori informazioni puoi contattare il nostro referente di zona
Data Asta: 13-05-2026
Codice Riferimento: SY610725

Caratteristiche

Piano 2
Ascensore No
Stato Buono / Abitabile
Riscaldamento Autonomo, a radiatori, alimentato a metano

Servizi e accessori

Cucina Impianto tv singolo

Posizione

Referente

Centro Aste Rimini

Storico

Pubblicato 01 Apr 2026
Disattivato 30 Apr 2026
Sul mercato 60 giorni
ID Annuncio 127693216