Vendita Villa Luxury

Villa

Contrada Agli Androni, 1, Terrasini, Palermo

Prezzo
170
mq
5
Locali
3
Camere
2
Bagni

Recensisci questo Immobile

Devi essere registrato per lasciare una recensione.

Accedi

Nessuna recensione ancora. Sii il primo!

Descrizione

In zona residenziale 'Agli Androni', proponiamo in vendita VILLA SINGOLA DI NUOVA COSTRUZIONE di 170 metri con in un lotto di terreno di 360 metri quadrati dotato di predisposizione per piscina.
La villa verrà consegnata al cliente con la formula 'chiavi in mano' e si trova attualmente in stato di costruzione. Per questo motivo, oggi vi è la possibilità di apportare alcune modifiche a proprio gusto.
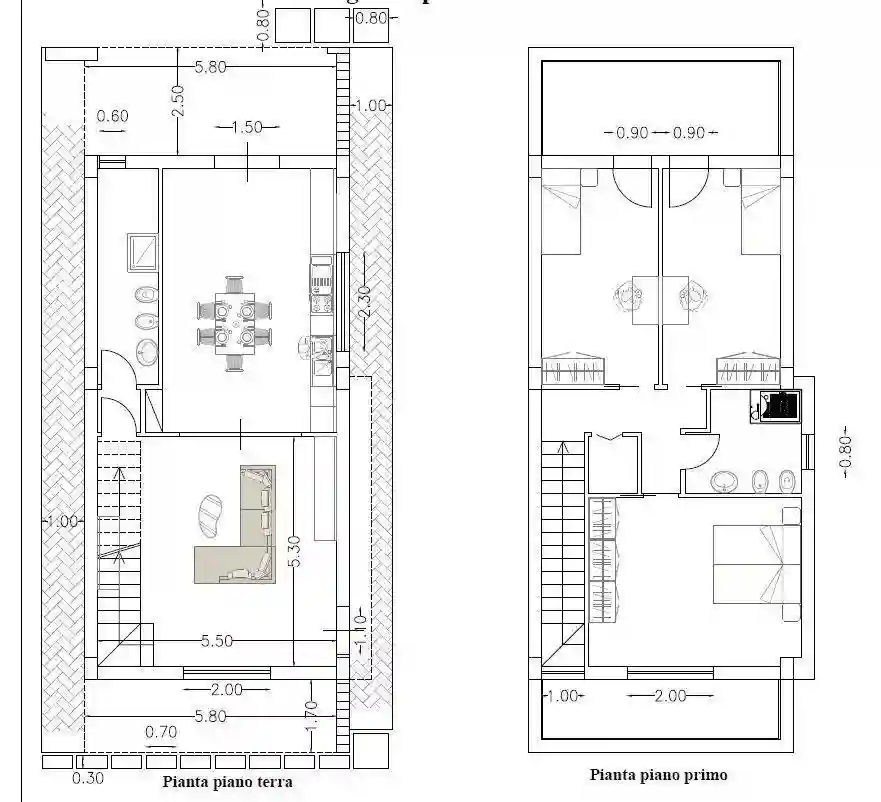
Il progetto prevede una costruzione su due livelli ed è così composta:
- al PIANO TERRA troviamo cucina abitabile, soggiorno annesso ad una veranda chiudibile e bagno.
- al PRIMO PIANO, raggiungibile con scala interna, troviamo camera da letto con balcone, due camerette con terrazzo, bagno e ripostiglio.
Inoltre, l'immobile gode di tripla esposizione garantendo luminosità e vista sul giardino.
La villa sarà provvista di tutti i comfort all'avanguardia con le ultime innovazioni edilizie come prospetto a cappotto, impianti solari termici e fotovoltaici.
E' possibile visionarla tutti i giorni previo appuntamento telefonico chiamando al nostro numero +39 327 672 5408 oppure inviando un messaggio tramite il servizio WHATSAPP.
Il nostro franchising, su richiesta, mette a disposizione dei propri clienti un consulente che, si occupa della mediazione creditizia ed assicurativa. Contattateci se volete una consulenza gratuita, per sapere quale sia la scelta più adatta alle vostre esigenze.
Seguici sui nostri canali facebook ed instagram.

Caratteristiche

Ascensore No
Stato Nuovo / In costruzione
Riscaldamento Autonomo, ad aria

Posizione

Referente

Affiliato Tecnocasa: TERRASINI CINISI SAS

Storico

Pubblicato 02 Apr 2026
Aggiornato 26 May 2026
Sul mercato 54 giorni
ID Annuncio 127716202