Vendita Appartamento

Appartamento

Via di Avane, Empoli, Firenze

Prezzo
128
mq
3
Locali
2
Camere
1
Bagni

Recensisci questo Immobile

Devi essere registrato per lasciare una recensione.

Accedi

Nessuna recensione ancora. Sii il primo!

Descrizione

Se stai cercando una casa moderna, efficiente e pronta a soddisfare ogni esigenza di comfort, questa è l’opportunità che aspettavi!
In zona Ospedale, tra le più richieste di Empoli, tranquilla e ben servita, proponiamo in vendita un elegante trilocale inserito in un contesto condominiale di NUOVA edificazione e progettato secondo le più moderne tecniche costruttive.

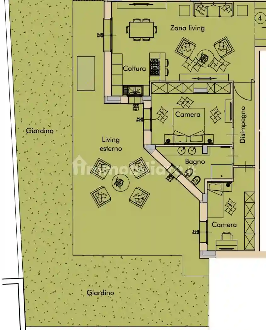
L’appartamento, posto al piano terreno, si distingue per la funzionalità degli spazi e la luminosità degli ambienti. L’ingresso si apre su un accogliente soggiorno con angolo cottura. Un pratico disimpegno conduce alla zona notte, composta da due camere da letto e servizio igienico finestrato, elementi che rendono l’abitazione ideale per famiglie o per chi desidera spazi ben organizzati.

Il vero valore aggiunto è rappresentato dal GIARDINO privato, che circonda l’immobile sui suoi due lati liberi: uno spazio esclusivo da vivere in ogni stagione, perfetto per chi ama la vita all’aria aperta, per i bambini o per trascorrere piacevoli momenti in compagnia. Completano la proprietà un garage e un posto auto esclusivo, garanzia di praticità e sempre più richiesti nella vita quotidiana.

Realizzato con finiture moderne e tecnologie costruttive di ultima generazione, l’immobile assicura elevati standard di comfort abitativo, efficienza energetica e qualità della vita. La posizione strategica consente di raggiungere in pochi minuti servizi, scuole, aree commerciali e la stazione ferroviaria (circa 15 minuti), mantenendo al tempo stesso la tranquillità di un contesto residenziale curato e con spese condominiali contenute.

Una soluzione davvero ideale per famiglie e per chi desidera una casa nuova, funzionale e completa di ogni comodità, in una zona ben collegata e ricercata!

Contattaci per maggiori informazioni o per prenotare una visita: la tua nuova casa ti sta aspettando.

Caratteristiche

Piano S
Ascensore Si
Stato Nuovo / In costruzione
Riscaldamento Autonomo

Servizi e accessori

Cancello elettrico Esposizione interna Fibra ottica Impianto di allarme Impianto tv centralizzato Infissi esterni in triplo vetro / PVC Porta blindata VideoCitofono

Posizione

Zona: Marcignana - Lucchese (Marcignana, Lucchese, Terrafino)

Referente

Agenzia Immobiliare La Tua Casa

Storico

Pubblicato 02 Apr 2026
Aggiornato 11 Apr 2026
Sul mercato 9 giorni
ID Annuncio 127716560

Recensioni

Vedi tutte
G

Giovanni Rossi

5.0

Se cercate un'agenzia immobiliare affidabile, consiglio di sceglierne una che sappia ascoltare davvero le vostre esigenze. Io sono stato molto fortunato: sono stato seguito con attenzione e profession...

A

Antonella Calabrese

4.3

Se cercate un’agenzia immobiliare affidabile, consiglio di rivolgervi a questa: mi sono trovata davvero bene! Sono stata seguita con attenzione e professionalità, e ho apprezzato la loro grande precis...

G

Giulia Messina

4.3

Appena ho visto la cura con cui sono state gestite le pratiche, ho capito di aver trovato il supporto giusto. Mi sono sentita seguita passo passo con grande professionalità e umanità, e questo mi ha d...