Vendita Appartamento

Appartamento

Via Verdina, 1, Pino Torinese, Torino

Prezzo
42
mq
1
Locali
1
Camere
1
Bagni

Recensisci questo Immobile

Devi essere registrato per lasciare una recensione.

Accedi

Nessuna recensione ancora. Sii il primo!

Descrizione

NUOVO APPARTAMENTO CON GIARDINO - PINO TORINESE
Nella prestigiosa collina Torinese, a 10 minuti dal centro cittadino Torinese, a pochi minuti a piedi dal centro di Pino Torinese, comune soprannominato il "paese delle stelle", lo Studio Immobiliare “Home & Living” propone in vendita 3 unità abitative (che vanno dai 40 mq ai 70 mq) all’interno di un'elegante palazzina di sole quattro unità abitative in fase di ristrutturazione integrale e restauro conservativo.
Gli appartamenti saranno dotati di finiture e soluzioni orientate al comfort abitativo, quali impianto di riscaldamento a pavimento con sistema a pompa di calore, impianto di condizionamento con pompa di calore, serramenti esterni in alluminio a taglio termico con vetrocamera pressurizzata e dotati di avvolgibili motorizzati, portoncino blindato e videocitofono.

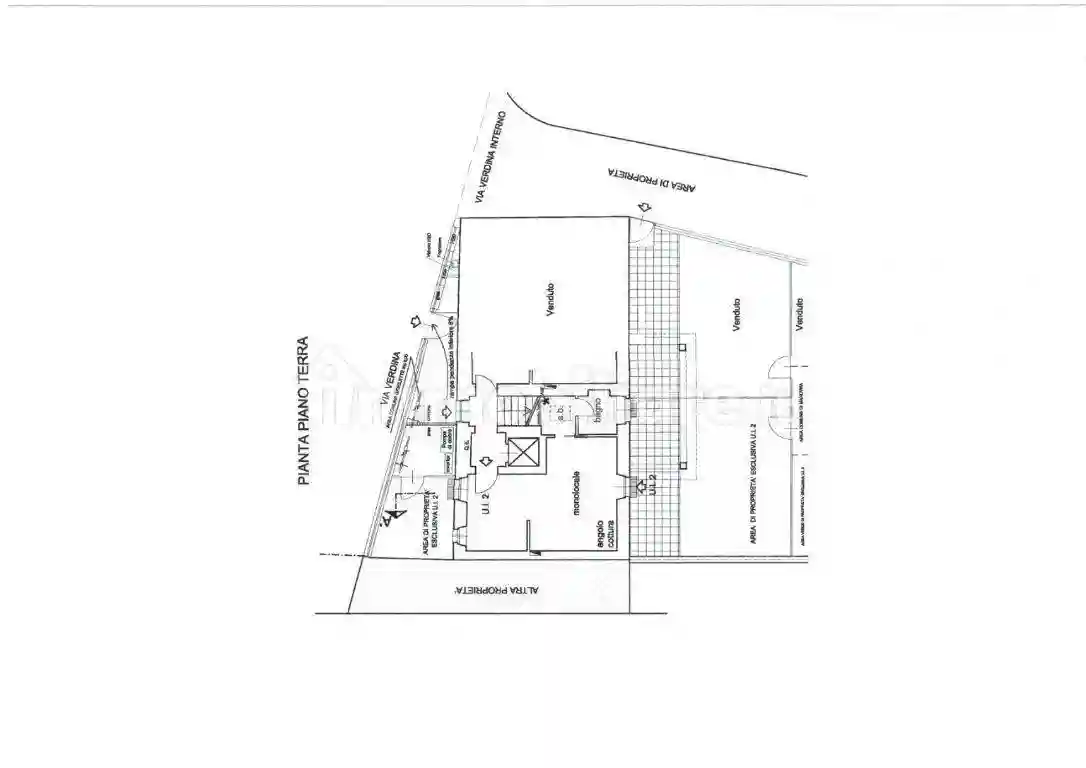
La soluzione proposta in vendita è un grazioso appartamento monolocale sito al piano terra con un ampio e gradevole giardino privato all’interno della corte condominiale e, nella parte retrostante, una piccola area privata anch’essa eventualmente dedicabile a verde e/o ricovero attrezzature; esso si compone da ingresso living su soggiorno/camera, un ampio angolo cottura da cui si accede al giardino privato esclusivo ed un bagno finestrato con doccia.

Attualmente in fase di ristrutturazione, l’immobile verrà consegnato al completamento delle parti strutturali, murarie e di sistemazione delle aree esterne, con la possibilità di personalizzazione
degli ambienti interni mediante la scelta di tutti i materiali dall’ampio capitolato a disposizione.

La proprietà è completata dalla presenza di una cantina pertinenziale al piano interrato e dalla possibilità di acquistare, con richiesta esclusa dal prezzo di vendita (€ 10.000), un posto auto sito all’interno della corte condominiale.

Caratteristiche

Piano T
Ascensore Si
Stato Nuovo / In costruzione
Riscaldamento Autonomo, a pavimento, alimentato a pompa di calore

Servizi e accessori

Cancello elettrico Esposizione doppia Fibra ottica Impianto di allarme Impianto tv con parabola satellitare Infissi esterni in doppio vetro / metallo Porta blindata VideoCitofono

Posizione

Referente

Home & Living

Storico

Pubblicato 02 Apr 2026
Disattivato 18 Apr 2026
Sul mercato 54 giorni
ID Annuncio 127724892

Recensioni

Vedi tutte
L

Lucia Motta

5.0

Stavo cercando la prima casa a Torino e grazie all'aiuto di questa agenzia mi sono sentita davvero seguita e supportata in ogni fase. Sono stata molto soddisfatta del loro ascolto e della capacità di...

S

Sofia Piras

5.0

Ricordo ancora quel momento emozionante in cui sono entrata nella mia nuova casa e ho capito che era quella giusta. Sono stata davvero felice di aver trovato un’agenzia così disponibile e professional...

E

Emma Raffaele

4.7

Durante il processo mi sono sentita molto supportata e rassicurata, grazie alla pazienza e alla chiarezza con cui mi hanno spiegato ogni dettaglio. Sono stata seguita passo dopo passo, e ho trovato l’...

C

Claudia Maffeis

4.3

Se cercate un’agenzia immobiliare a Torino, consiglio di puntare su chi offre trasparenza e affidabilità. Mi sono trasferita in città per lavoro e volevo trovare un affitto rapidamente, e sono stata s...

S

Sonia Cattaneo

4.3

Stavo cercando una casa vicino ai miei genitori anziani e ho trovato l’agenzia giusta. Mi hanno seguita passo dopo passo, aiutandomi a trovare l’appartamento perfetto in tempi rapidi e con grande tras...