Vendita Casa indipendente

Casa indipendente

Fiume Veneto, Pordenone

Prezzo
161
mq
5
Locali
3
Camere
2
Bagni

Recensisci questo Immobile

Devi essere registrato per lasciare una recensione.

Accedi

Nessuna recensione ancora. Sii il primo!

Descrizione

VILLETTA IN COSTRUZIONE A CIMPELLO – CONSEGNA AUTUNNO 2027
Se cerchi una casa moderna, indipendente e personalizzabile, questa è l'opportunità perfetta! In una zona residenziale tranquilla di Fiume Veneto – Loc. Cimpello, sono in costruzione due villette di cui una già venduta, unite solo dal portico garage, garantendo massima privacy e comfort abitativo.
Caratteristiche principali:
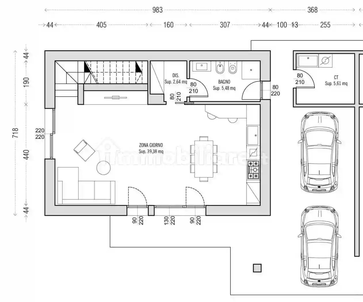
Superficie commerciale 161 mq, circa, spazi ben distribuiti su due livelli.
Piano terra: cucina-ampio soggiorno openspace( anche divisibile), portico esterno, servizio, locale impianti e porticato auto coperto
Piano primo: tre camere da letto, ulteriore servizio, travi a vista in legno, per un'atmosfera calda e accogliente.
Ampio giardino privato recintato di circa 500 mq con accesso carraio e posti auto esclusivi.
Finiture di qualità e possibilità di personalizzazione di impianti e materiali.
Posizione strategica, a pochi minuti dallo svincolo autostradale, per un collegamento rapido con la città e i principali punti di interesse.
Proposta esente da mediazione perchè già assolta dal costruttore
Valutiamo il tuo immobile usato e lo vendiamo alle migliori condizioni di mercato.

NOTA : il rendering mostrato è realizzato con AI ed è a scopo puramente illustrativo, non vincolante per la D.L.
Per informazioni e dettagli sul progetto, contattaci al 0434-921788 e scopri altre proposte sul nostro sito sempre aggiornato www.gruppolaprecisa.com

Caratteristiche

Piano T
Ascensore No
Stato Nuovo / In costruzione
Riscaldamento Autonomo, a pavimento, alimentato a fotovoltaico

Posizione

Referente

Gruppo La Precisa

Storico

Pubblicato 01 Apr 2026
Aggiornato 25 May 2026
Sul mercato 54 giorni
ID Annuncio 127769314