Vendita Appartamento

Appartamento

Via Santa Maria, Pisa, Pisa

Prezzo
165
mq
4
Locali
2
Camere
1
Bagni

Recensisci questo Immobile

Devi essere registrato per lasciare una recensione.

Accedi

Nessuna recensione ancora. Sii il primo!

Descrizione

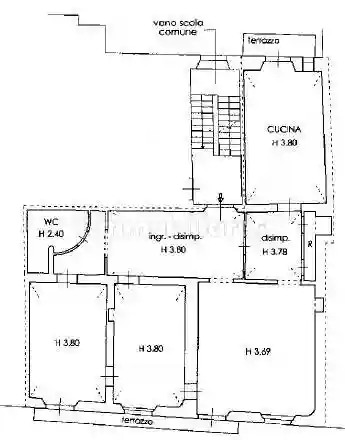
L018 – PISA - SANTA MARIA: A pochissimi metri da Piazza dei Miracoli PRESTIGIOSA DIMORA STORICA di ampia metratura e comfort moderno. Il fascino dell'antico, la sicurezza del nuovo. Nel cuore pulsante di Pisa, all’interno di un ELEGANTE PALAZZO STORICO COMPOSTO DA SOLE 4 UNITA', APPARTAMENTO di circa mq. 165 che coniuga il prestigio architettonico con la massima efficienza abitativa. L'immobile è stato oggetto di una COMPLETA E ACCURATA RISTRUTTURAZIONE nel 2015, garantendo impianti moderni e finiture di pregio in un contesto d' epoca unico. La distribuzione degli spazi è estremamente funzionale. L’immobile si apre su un ampio disimpegno abitabile (ideale come zona accoglienza o libreria), che serve 4 VANI MAESTOSI, perfetti per configurare un salone doppio e camere matrimoniali extra-large oltre ad un bagno moderno e un comodo ripostiglio. La proprietà dispone di un CARATTERISTICO BALCONE sul fronte e di una RISERVATA TERRAZZA sul retro, un vero polmone verde privato in pieno centro. In uso un COMODO POSTO AUTO SCOPERTO ESCLUSIVO. Per chi necessita di ulteriore spazio o sicurezza per i propri veicoli, è possibile acquistare separatamente un garage situato nello stesso stabile. CE F ipe 251.12 kWh/mq. anno. Trattativa riservata. LC-SERVIZI IMMOBILIARI – 348/2223680 - www.lcserviziimmobiliari.it

Caratteristiche

Piano 1
Ascensore No
Stato Ottimo / Ristrutturato
Riscaldamento Autonomo, a radiatori, alimentato a gas

Servizi e accessori

Esposizione esterna Infissi esterni in doppio vetro / PVC

Posizione

Zona: Santa Maria (Centro)

Referente

LC Servizi Immobiliari

Storico

Pubblicato 02 Apr 2026
Aggiornato 26 May 2026
Sul mercato 54 giorni
ID Annuncio 127788494