Vendita Appartamento

Appartamento

Via Celso, Firenze, Firenze

Prezzo
81
mq
3
Locali
2
Camere
1
Bagni

Recensisci questo Immobile

Devi essere registrato per lasciare una recensione.

Accedi

Nessuna recensione ancora. Sii il primo!

Descrizione

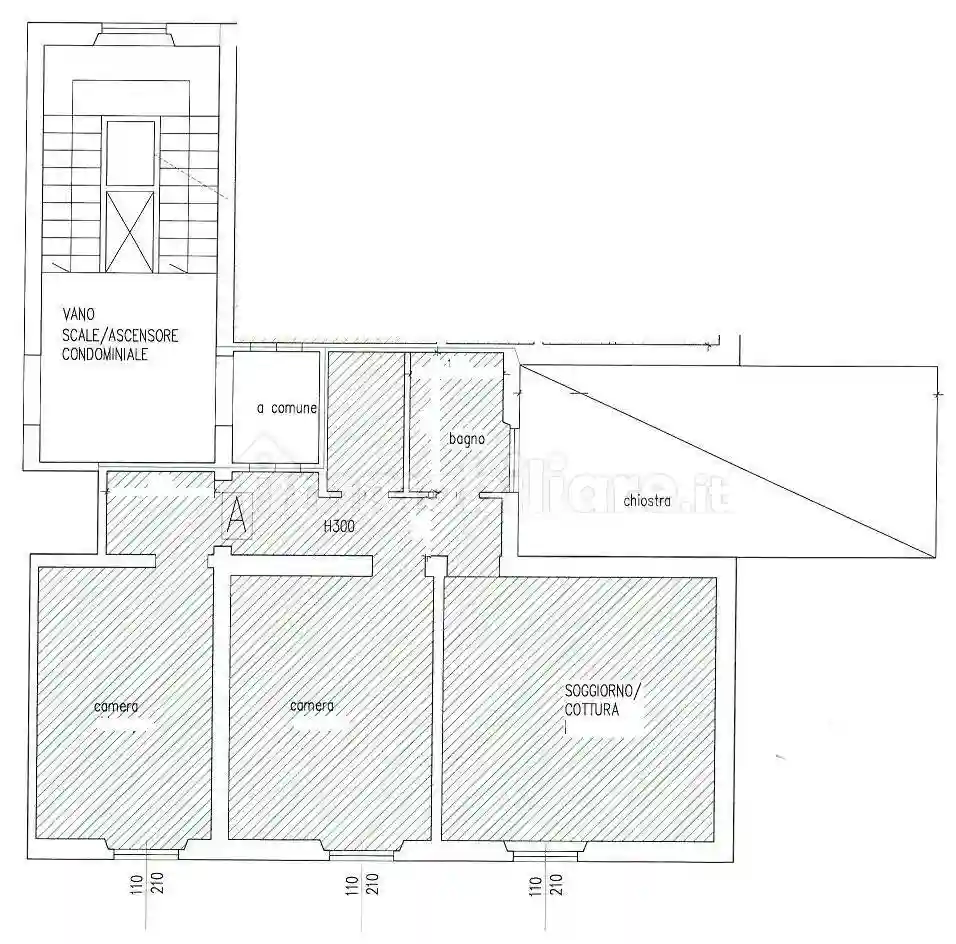
In palazzina anni '50, al primo piano, ampio trilocale in fase di completa ed accurata ristrutturazione, composto da ingresso, soggiorno con angolo cottura, due camere, servizio e ripostiglio.

L’immobile, di circa 81 mq, si distingue per una distribuzione razionale degli spazi interni ed è composto da ingresso, luminosa zona giorno con angolo cottura, due spaziose camere matrimoniali, servizio finestrato e pratico ripostiglio. La proprietà è dotata di impianto di aria condizionata, a garanzia di un elevato comfort abitativo in ogni stagione. Le finiture moderne e la recente riqualificazione rendono l’appartamento immediatamente abitabile, senza necessità di ulteriori interventi.

La soluzione rappresenta un’ottima opportunità sia per giovani single o coppie al primo acquisto, sia per investitori alla ricerca di un immobile da mettere a reddito, grazie alla posizione strategica e alla forte richiesta locativa della zona.
Punto di forza dell’appartamento è la sua centralità, con immediata vicinanza a mezzi pubblici, servizi e principali collegamenti.

Contattaci subito al n. 055 4369593 e fissa un sopralluogo per venire a vederlo.

Caratteristiche

Piano 1
Ascensore No
Stato Ottimo / Ristrutturato
Riscaldamento Autonomo

Servizi e accessori

Fibra ottica Porta blindata

Posizione

Zona: Careggi - Rifredi - Dalmazia (Serpiolle, Careggi)

Referente

ITALIANA IMMOBILIARE Firenze Dalmazia

Storico

Pubblicato 02 Apr 2026
Disattivato 14 May 2026
Sul mercato 59 giorni
ID Annuncio 127788958

Recensioni

Vedi tutte
B

Bianca Marchese

4.3

Stavo cercando un terreno a Firenze per costruire la mia casa e ho trovato l’agenzia che ha risposto perfettamente alle mie esigenze. Sono stata seguita con attenzione e professionalità, e ogni dettag...