Vendita Villa

Villa

Via Del Santuario, 2, Castelvetro di Modena, Modena

Prezzo
Ottimo Affare: 33% sotto la media
125
mq
5+
Locali
12
Camere
2
Bagni

Recensisci questo Immobile

Devi essere registrato per lasciare una recensione.

Accedi

Nessuna recensione ancora. Sii il primo!

Descrizione

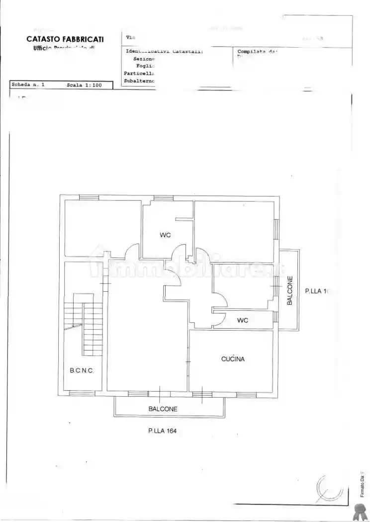
Piena proprietà di porzione di fabbricato ubicata nel comune di Castelvetro di Modena (Mo), frazione di Puianello, via del santuario n. 2/c. L'unità immobiliare ad uso civile abitazione è disposta su piani terra e primo ed ha annessa area cortiliva senza precisa individuazione e delimitazione dei confini. Contattaci per scoprire come acquistare anche prima dell'asta. Proponiamo il servizio di ASTA TELEMATICA per evitarti di andare in Tribunale, comodamente dal nostro ufficio.

Caratteristiche

Posizione

Referente

2 F Studio Consulenze Aste Giudiziarie

Storico

Pubblicato 01 Apr 2026
Aggiornato 09 Apr 2026
Sul mercato 8 giorni
ID Annuncio 127797344