Vendita Casa indipendente Luxury

Casa indipendente

Via Francesco Carrara, 237, Forte dei Marmi, Lucca

Prezzo
100
mq
5+
Locali
3
Camere

Recensisci questo Immobile

Devi essere registrato per lasciare una recensione.

Accedi

Nessuna recensione ancora. Sii il primo!

Descrizione

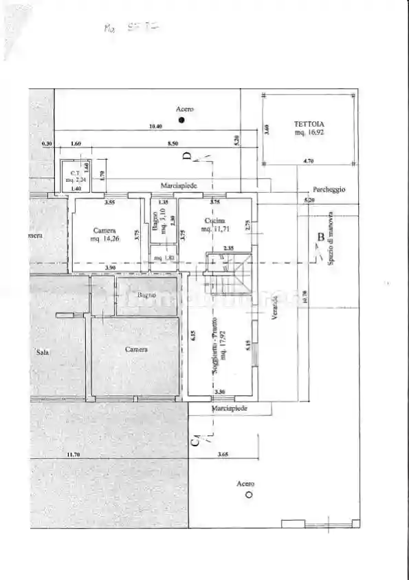
A soli 800 metri dalle spiagge di Forte dei Marmi, in una zona tranquilla e residenziale, proponiamo in vendita una graziosa villetta bifamiliare disposta su due livelli fuori terra.
Al piano terra si accede tramite un ingresso che conduce ad un luminoso soggiorno, cucina abitabile, una camera da letto, un bagno e comodo ripostiglio. Al piano superiore si sviluppa la zona notte, composta da due ampie camere matrimoniali, un secondo bagno finestrato e un pratico vano armadi. L’abitazione è circondata da un piacevole spazio esterno ideale per pranzi e cene all’aperto, oltre a offrire la possibilità di parcheggiare comodamente più auto all’interno del giardino privato.
Un’ottima soluzione per chi desidera vivere il mare in un contesto rilassante, ma vicino a tutti i servizi. Info presso il ns ufficio.

Caratteristiche

Ascensore No
Stato Buono / Abitabile
Riscaldamento Autonomo

Servizi e accessori

Armadio a muro Impianto di allarme Infissi esterni in doppio vetro / PVC Porta blindata VideoCitofono

Posizione

Referente

Giemme immobiliare

Storico

Pubblicato 02 Apr 2026
Aggiornato 11 Apr 2026
Sul mercato 10 giorni
ID Annuncio 127846912

Recensioni

Vedi tutte
M

Maria Mancuso

5.0

Stavo cercando una casa più vicino ai miei genitori anziani, e grazie alla professionalità e pazienza dell'agenzia, sono stata seguita in ogni fase del processo. La loro assistenza post-vendita è stat...

S

Simona Pagani

5.0

Ricordo ancora quando sono andata a firmare il contratto, sono stata colpita dalla puntualità e dall’affidabilità dell’agenzia, che mi ha seguita passo dopo passo con molta attenzione. La professional...

S

Simone Cortese

4.7

Cercavo un terreno per costruire la mia casa e la ricerca non è stata facile, finché non ho trovato questa agenzia. Mi sono sentito seguito passo passo, con molta professionalità e chiarezza nelle spi...

E

Emma Perini

4.7

Ho avuto modo di essere seguita da un'agenzia molto competente e disponibile nell'ambito della mia ricerca di un appartamento con vista mare. La loro ampia scelta di immobili e la professionalità nell...

E

Elena Timpano

4.3

Ricordo ancora quel momento in cui ho visitato l'agenzia e ho trovato subito una vasta scelta di appartamenti adatti alle mie esigenze. Mi sono sentita subito seguita e rassicurata dalla professionali...