Vendita Appartamento

Appartamento

Rigutino Ovest, 52100 Arezzo AR, Italia, Arezzo, Arezzo

Prezzo
Ottimo Affare: 40% sotto la media
235
mq
5
Locali
5
Camere
3
Bagni

Recensisci questo Immobile

Devi essere registrato per lasciare una recensione.

Accedi

Nessuna recensione ancora. Sii il primo!

Descrizione

Arezzo (AR) [SY598522]
Rigutino Ovest, 52100 Arezzo AR, Italia
rge 69/2024

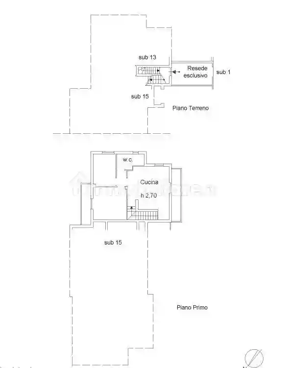
Appartamento di mq 235 su quattro livelli composto al piano interrato da due locali deposito; al piano terra da ingresso principale, soggiorno, la cucina, un disimpegno, un bagno; al primo piano da due soffitte laterali utilizzate come camere doppie, due camere singole, un bagno, un disimpegno, una terrazza; al secondo piano da soffitta, un bagno. A piano terra è presente il garage, diviso attualmente in tre locali – disimpegno, camera, deposito - di mq 28.

Possibilità di acquisto immobiliare prima dell'asta.
PER MAGGIORI INFORMAZIONI PUOI CONTATTARE IL NOSTRO REFERENTE DI ZONA .
RESPONSABILE UFFICIO: CELL 3803848747 ELENA
Sede: Via Alessandro dal Borro, 57 – Arezzo
Contattaci per avere tutte le informazioni necessarie, siamo a tua disposizione per accompagnarti dalla ricerca dell'immobile fino alla consegna delle chiavi, massimizzando la possibilità di fare un ottimo affare in piena sicurezza.
Possibilità di Mutuo al 100%

SU QUESTO IMMOBILE E’ POSSIBILE:

- Mutuo al 100%
- Visita Interni
- NO Oneri Notarili
- Nessuna Ipoteca
- Agevolazione Prima Casa

Le foto pubblicate potrebbero non corrispondere all'immobile specifico, i documenti ufficiali sono visionabili in filiale.

CENTRO ASTE OFFRE I SEGUENTI SERVIZI:

1. PRIMA CONSULENZA
Appuntamento presso una delle 50 Filiali in Italia per offrire chiarimenti sulle aste ed ascoltare le tue esigenze immobiliari.

2. MEDIAZIONE CREDITIZIA
Servizio esclusivo ad alto valore aggiunto, proponendo un ventaglio di prodotti tra i più completi con studio fattibilità per la partecipazione in asta con mutuo fino al 100%

3. ASSISTENZA TECNICO - LEGALE
- Ricerca Immobili ed invio settimanale per email
- Studio della perizia e della documentazione
- Accertamenti catastali per eventuali abusi edilizi
- Accompagnamento Visita Immobile
- Disbrigo pratiche per la partecipazione
- Rappresentanza Legale il giorno della vendita
- Rilascio del decreto di trasferimento in tempi brevi
- Assistenza per il Saldo Prezzo
- Compilazione F24 per Tasse
- Disbrigo Pratiche per Eventuale Sanatoria
- Assistenza alla Consegna Immobile

Per maggiori informazioni puoi contattare il nostro referente di zona
Data Asta: 04-06-2026
Codice Riferimento: SY598522

Caratteristiche

Piano 2
Ascensore No
Stato Buono / Abitabile
Riscaldamento Autonomo, a radiatori, alimentato a metano

Servizi e accessori

Cucina Impianto tv singolo

Posizione

Zona: Rigutino (San Zeno, Puliciano, Rigutino)

Referente

Centro Aste Arezzo

Storico

Pubblicato 02 Apr 2026
Aggiornato 11 Apr 2026
Sul mercato 9 giorni
ID Annuncio 127853110

Recensioni

Vedi tutte
E

Emanuela Ruggeri

4.7

Appena ho varcato la soglia della nuova casa, sono rimasta colpita dalla cura con cui mi hanno seguita passo dopo passo: hanno ascoltato ogni mia esigenza e mi hanno aiutata a trovare il quartiere per...