Vendita Progetto

Progetto

Viale Verona, 98, Trento, Trento

Prezzo
68
mq
2-3
Locali

Recensisci questo Immobile

Devi essere registrato per lasciare una recensione.

Accedi

Nessuna recensione ancora. Sii il primo!

Descrizione

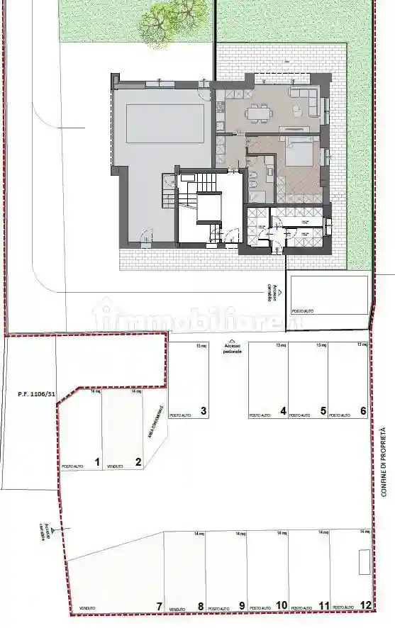
Nuovo progetto immobiliare in Viale Verona 98. Si tratta di una palazzina di nuova costruzione in Classe A+, composta da sole sei unità abitative e distribuita su tre piani fuori terra.

L'immobile è così strutturato:
- Piano terra: Ingresso, vano scale con ascensore, tre cantine, garage e un appartamento bilocale con terrazza e giardino privato.
- Primo piano: Due appartamenti trilocali, ciascuno dotato di terrazza.
- Secondo piano: Un appartamento di ampia metratura
- Terzo piano (mansardato): Due appartamenti trilocali con terrazza.

Completano la proprietà un piazzale sul retro con 12 posti auto privati.
Dal punto di vista tecnologico, l'edificio vanta pannelli fotovoltaici, pompa di calore condominiale, riscaldamento e raffrescamento a pavimento e sistema di ventilazione meccanica controllata.

I clienti avranno la possibilità di personalizzare le finiture interne.
La fine dei lavori e la consegna delle unità abitative sono previste per giugno 2026. Si segnala, inoltre, che l'acquirente potrà beneficiare delle detrazioni fiscali previste per l'acquisto.

App.to 01: richiesta € 285.000
App.to 02: richiesta € 370.000
App.to 06: richiesta € 370.000

Impresa Edilnicoletti

Trento Casa Srl
Via Torre Verde 10

Caratteristiche

Stato Nuovo / In costruzione
Riscaldamento Centralizzato, a pavimento, alimentato a pompa di calore

Servizi e accessori

Infissi esterni in triplo vetro / PVC Parcheggio bici

Posizione

Zona: San Bartolomeo (Trento Sud)

Referente

Trento Casa S.R.L.

Storico

Pubblicato 02 Apr 2026
Disattivato 14 Apr 2026
Sul mercato 58 giorni
ID Annuncio 127883628

Recensioni

Vedi tutte
S

Susanna Margiotta

5.0

Se state cercando un’agenzia che vi segua passo dopo passo, consiglio di affidarsi a loro. Mi sono trovata molto bene grazie alla loro puntualità negli appuntamenti e alla conoscenza approfondita dell...