Vendita Appartamento

Appartamento

Via Massimo d'Azeglio, Lissone, Monza e Brianza

Prezzo
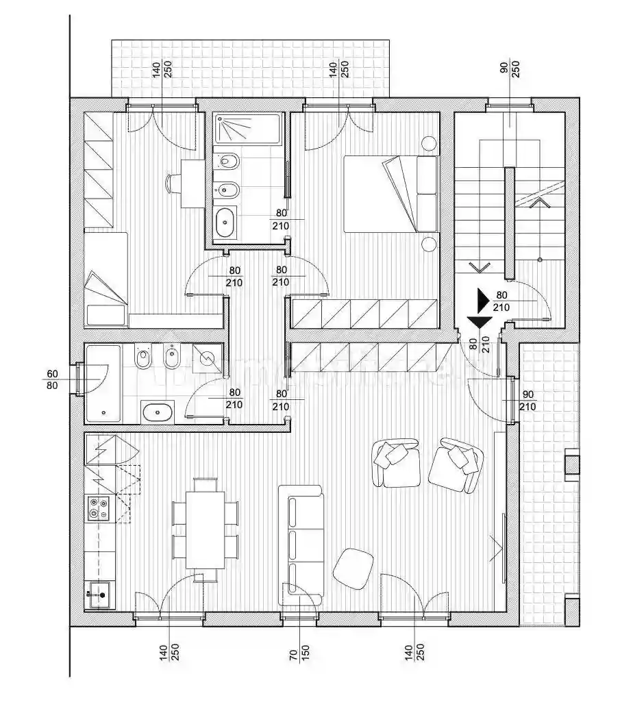
120
mq
4
Locali
3
Camere
2
Bagni

Recensisci questo Immobile

Devi essere registrato per lasciare una recensione.

Accedi

Nessuna recensione ancora. Sii il primo!

Descrizione

**Appartamento in Vendita a pochi passi da Milano**

Scopri il tuo nuovo rifugio in una posizione tranquilla e silenziosa, ideale per chi cerca un equilibrio tra vita urbana e serenità. Questo appartamento di nuova realizzazione, mai abitato, offre spazi funzionali, con un taglio moderno di circa mq. 120 ca. Si segnala la possibilità di personalizzare a proprio piacimento il taglio dell'immobile così come il capitolato interno.
La vicinanza alla Valassina garantisce un facile accesso a Milano, mentre i servizi di prima necessità come scuole, ristoranti e attività ricreative sono a pochi passi.

L'appartamento dispone di aria condizionata e finiture di pregio.
Non perdere l'opportunità di acquistare questa nuova soluzione a cui poter legare eventualmente uno/due posti auto posti all'interno allo stabile per €. 15.000, 00 cad. uno e due comode cantine ad €. 5.000, 00 cad.
Possibilità di recuperare una quota dell'investimento per l'acquisto attraverso le detrazioni fiscali cedute dalla committente esecutrice delle opere. Consegna prevista entro primavera 2027.
Non aspettare, il tuo nuovo inizio ti aspetta!

Per ulteriori informazioni in merito contattare il Sig. Tiraboschi Giorgio al seguente numero: 393.90. 18.425.

Caratteristiche

Piano 1
Ascensore No
Stato Nuovo / In costruzione
Riscaldamento Autonomo, ad aria, alimentato a pompa di calore

Servizi e accessori

Cancello elettrico Esposizione doppia Impianto tv centralizzato Infissi esterni in doppio vetro / PVC Porta blindata VideoCitofono

Posizione

Referente

Abitare.a

Storico

Pubblicato 02 Apr 2026
Aggiornato 25 May 2026
Sul mercato 54 giorni
ID Annuncio 127916954

Recensioni

Vedi tutte
V

Valeria Barone

5.0

Ricordo ancora il momento in cui ho trovato l’appartamento perfetto grazie alla loro disponibilità e puntualità negli appuntamenti, mi sono sentita subito seguita e supportata in ogni fase. Stata molt...

V

Valentina Musumeci

4.7

Ho trovato l'investimento immobiliare perfetto grazie alla loro disponibilità e serietà, che mi hanno accompagnata passo dopo passo. Sono stata davvero soddisfatta dell’attenzione e della professional...