Indietro
Vendita Palazzo - Edificio

Palazzo - Edificio

Via del Casaletto, Roma, Roma

Prezzo
Buon Prezzo: 22% sotto la media
600
mq

Recensisci questo Immobile

Devi essere registrato per lasciare una recensione.

Accedi

Nessuna recensione ancora. Sii il primo!

Descrizione

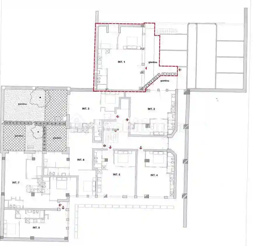
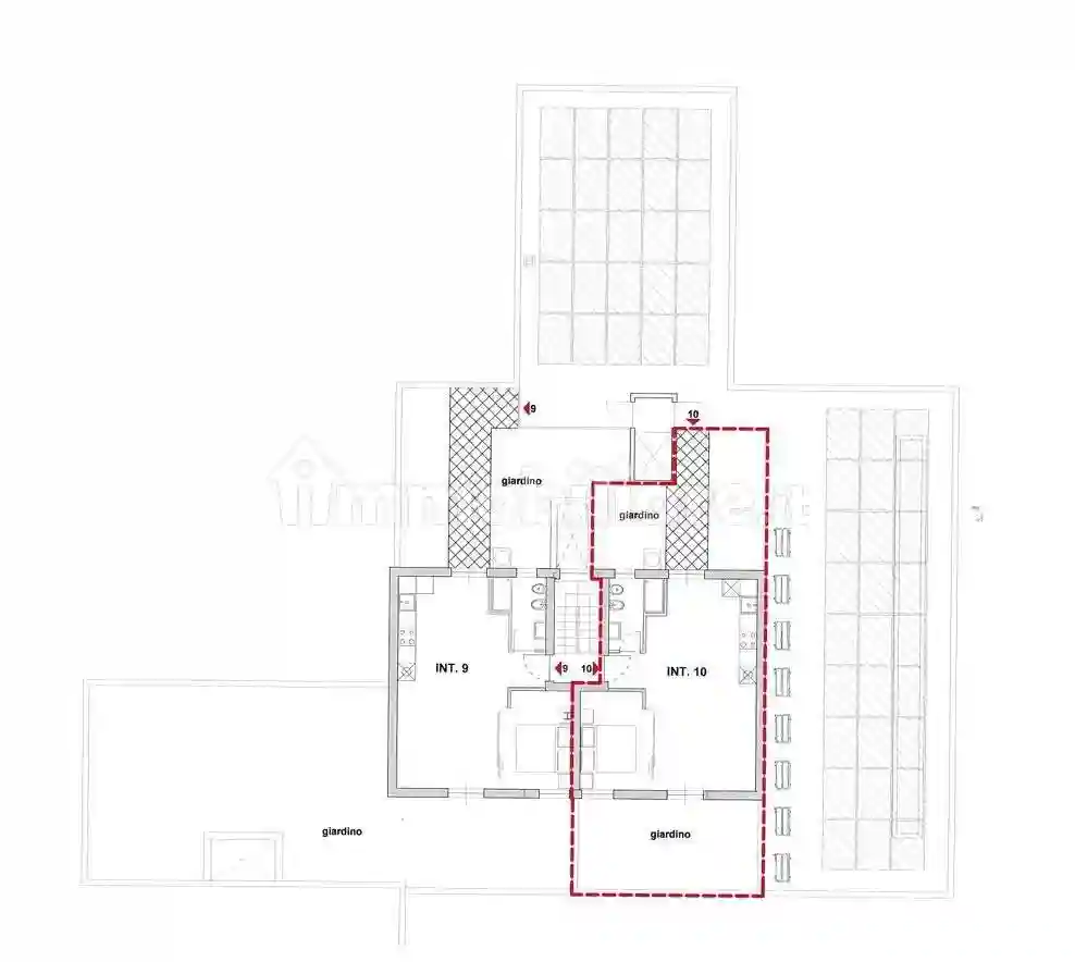
Casaletto palazzetto su due piani di 600 mq con permesso di realizzazione di 10 appartamenti con annessi giardini/terrazzi e posti auto.
La struttura sviluppa oltre i 600 mq interni, 350 mq esterni, progetto già accordato. Prezzo € 2.000.000
L’iniziativa è sita in Via del Casaletto a pochi passi da Villa Pamphili in un contesto assolutamente signorile e nel verde.
Il progetto prevede la realizzazione di bicamere e tricamere con possibilità di realizzare anche ingressi indipendenti.
La posizione e i tagli realizzabili sono di immediata collocazione sul mercato con ampi margini di soddisfazione economica.
Si richiede la rivendita delle unità realizzate con garanzia di collocazione in tempi brevissimi.
Contattaci per informazioni e appuntamenti al numero 06.86205000

Visita il nostro sito www.casaincontro.com - Instagram: casaincontro1992 - Facebook Casaincontro Srl.
Qualsiasi nostro appartamento può essere acquistato a seguito della vendita del vostro. Siamo disponibili ad effettuare sopralluogo per valutazione gratuita. Seguite i nostri ANNUNCI in "VETRINA", le MIGLIORI novità sempre in evidenza.

Caratteristiche

Piano T

Posizione

Zona: Colli Portuensi - Casaletto (Monteverde, Gianicolense, Colli Portuensi, Casaletto)

Referente

Casaincontro

Storico

Pubblicato 01 Apr 2026
Aggiornato 25 May 2026
Sul mercato 55 giorni
ID Annuncio 127951126

Recensioni

Vedi tutte
D

Daniela Franzese

5.0

Se state cercando un’agenzia immobiliare affidabile, vi consiglio di sceglierne una che sappia seguire ogni dettaglio con competenza. Sono stata davvero soddisfatta: mi hanno aiutata a trovare la mia...

M

Maria Damiani

4.7

Stavo cercando un appartamento vicino ai miei genitori anziani e sono stata davvero fortunata a trovare questa agenzia. Mi sono sentita seguita con attenzione e professionalità in ogni fase della scel...

R

Rosa Chiari

4.0

Ricordo ancora il momento in cui ho trovato l’immobile perfetto per il mio investimento, grazie alla loro preziosa assistenza. Sono stata davvero felice di essere seguita passo passo nella fase del mu...

M

Marilena Cossu

4.0

Ho trovato un’agenzia immobiliare davvero affidabile a Roma, che mi ha aiutata a vendere il mio locale commerciale senza stress. La loro flessibilità negli orari mi ha permesso di organizzare tutto se...