Indietro
Vendita Casa indipendente

Casa indipendente

Via Foresto, 12, Giustenice, Savona

Prezzo
Ottimo Affare: 62% sotto la media
203
mq
5+
Locali
4
Camere
2
Bagni

Recensisci questo Immobile

Devi essere registrato per lasciare una recensione.

Accedi

Nessuna recensione ancora. Sii il primo!

Descrizione

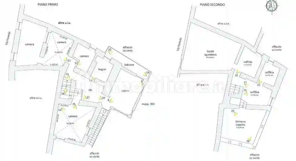
Casa di civile abitazione sviluppata su tre piani, composta al piano terreno da locali ad uso deposito, cantine, locale caldaia e corti esterne esclusive, al piano primo da quattro camere, disimpegno, bagno, cucina e balcone e al piano secondo da soffitte e terrazzo coperto, per una superficie commerciale complessiva di circa mq 203.
L'immobile viene venduto dal tribunale tramite asta giudiziaria e il prezzo indicato si riferisce all'offerta minima.
Per chi acquista come prima casa, sono previste agevolazioni.
Cerchi casa all'Asta ?
Ti sei già informato ?
Pensi che il mutuo al 100% sia solo una pubblicità ?
Astexte, la soluzione!
Cosa aspetti ?
HAI UNA CASA PIGNORATA ? POSSIAMO AIUTARTI !
CHIAMACI ALLO 0109841034

Caratteristiche

Ascensore No

Servizi e accessori

Mansarda

Posizione

Referente

Astexte Genova

Storico

Pubblicato 01 Apr 2026
Aggiornato 09 Apr 2026
Sul mercato 8 giorni
ID Annuncio 127952042

Recensioni

Vedi tutte
I

Ivano Pandolfi

5.0

Ho deciso di rivolgermi a questa agenzia immobiliare a Genova perché avevo sentito parlare della loro professionalità e cortesia. Sono stato molto soddisfatto del modo in cui hanno seguito ogni fase d...

S

Silvano Tommasi

4.7

Ricordo ancora il momento in cui ho firmato il contratto, tutto è stato davvero senza intoppi. L'agente mi ha seguito passo dopo passo, mostrando grande disponibilità e attenzione ai dettagli, sopratt...