Indietro
Vendita Rustico - Casale

Rustico - Casale

Via S. Giovanni 18- 18/A, Regalbuto, Enna

Prezzo
Ottimo Affare: 73% sotto la media
175
mq
5
Locali
3
Camere
2
Bagni

Recensisci questo Immobile

Devi essere registrato per lasciare una recensione.

Accedi

Nessuna recensione ancora. Sii il primo!

Descrizione

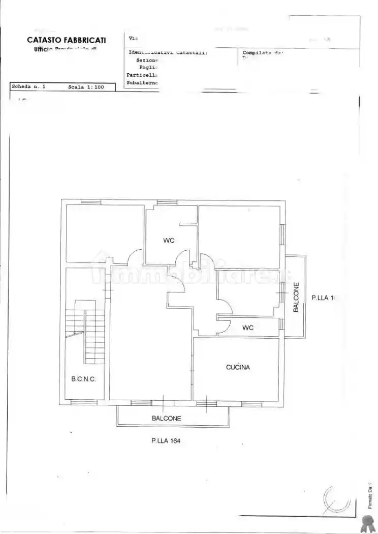
Stabile in asta a Regalbuto (EN) – Via S. Giovanni 18-18/A (CAP 94017)

Fabbricato situato a Regalbuto, in zona centrale e residenziale, in Via San Giovanni 18-18/A. L'edificio, costruito negli anni trenta, si sviluppa su tre elevazioni fuori terra e un piano seminterrato rispetto alla Via San Giovanni (quattro elevazioni fuori terra rispetto al Vicolo Salso). La zona è ben servita e collegata, provvista di servizi di urbanizzazione primaria e secondaria.

Superficie e distribuzione interna
L'immobile, con una superficie commerciale totale di 175 mq, è composto da tre unità immobiliari: un appartamento al piano primo (sub 2) di 52 mq, un appartamento ai piani secondo e terzo (sub 3) di 79 mq, e un'autorimessa al piano terra (sub 1) di 44 mq.

Contesto e collegamenti
L'immobile è ubicato in zona centrale-residenziale, ben servita e collegata, con disponibilità di posteggi liberi.

Dati principali dell'asta
Valore di stima: € 28.000,00
Offerta minima: € 14.062,50
Rilancio minimo: € 500,00
Risparmio (differenza tra valore di stima e offerta minima): 50%
Data asta: 03/06/2026
Termine presentazione offerte: 02/06/2026 11:00

Punti di forza:
• Libero per la procedura
• Potenziale edificatorio
• Zona centrale
• Conforme alle prescrizioni urbanistiche dell’epoca

Studio di fattibilità pre-asta

Consulenza completa per l'acquisto di immobili all'asta:
• analisi della perizia e verifiche legali
• studio di fattibilità del mutuo con banche convenzionate
• preparazione e deposito dell'offerta
• gestione della gara e assistenza fino al decreto di trasferimento

Tel. +39 06 4006 1824
www.asteflorio.it

Oltre 20.000 aste disponibili sul portale

NB: le immagini potrebbero essere puramente indicative e non rappresentare l'immobile reale. Le coordinate geografiche sono generate automaticamente e potrebbero contenere inesattezze. Tutti i dati saranno verificati in sede di consulenza.

Caratteristiche

Ascensore No
Stato Ottimo / Ristrutturato
Riscaldamento Autonomo, a radiatori, alimentato a gas

Servizi e accessori

Caminetto Cucina Esposizione doppia Impianto tv centralizzato Infissi esterni in doppio vetro / legno VideoCitofono

Posizione

Referente

Aste Florio

Storico

Pubblicato 02 Apr 2026
Aggiornato 11 Apr 2026
Sul mercato 8 giorni
ID Annuncio 127972378

Recensioni

Vedi tutte
D

Diana Geraci

4.3

Ho trovato l'investimento immobiliare perfetto grazie alla loro serietà e alla conoscenza approfondita del mercato locale. Sono stata seguita passo dopo passo, e mi hanno aiutata a fare scelte sicure...

G

Giulia Lanzoni

4.0

Ricordo ancora il momento in cui ho visto il terreno e subito ho capito che era quello giusto. Sono stata subito seguita con pazienza e rapidità, trovando tutte le risposte alle mie domande senza stre...

B

Barbara Laurenti

4.0

Grazie mille per avermi seguita con tanta professionalità e competenza! Mi sono trovata davvero bene, sapevo di poter contare su un’agenzia affidabile e conosciuta bene il mercato locale, e così è sta...