Vendita Villa

Villa

Verona, Verona

Prezzo
168
mq
5
Locali
3
Camere
3
Bagni

Recensisci questo Immobile

Devi essere registrato per lasciare una recensione.

Accedi

Nessuna recensione ancora. Sii il primo!

Descrizione

INFO 3476508567
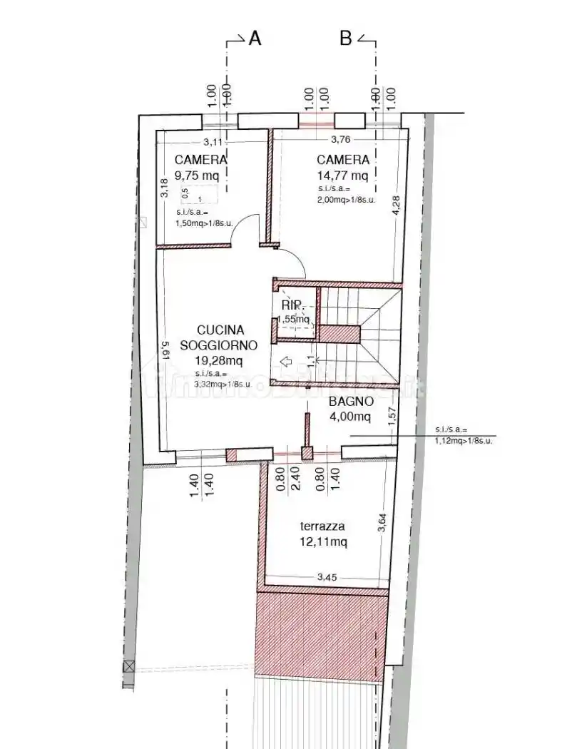
Vendesi con nulla osta di fattibilità consegnato, operazione immobiliare in comune di Verona in Via Bovo , che consente la costruzione di tre unità immobiliari di fatto singole ma collegate tra lorodai garage.
Il progetto permette di edificare tre ville unifamiliari di grandi dimensioni, due delle quali su due livelli fuori terra e una ad un piano fuori terra con interrato.
Nello specifico al piano terra soggiorno cucina di 40 mq due camere e bagno, al piano primo camera padronale con bagno e zona cabina armadio e terrazzo. Completano la proprietà garage doppio e ampio giardino.
CLASSE A/4
INFO 3476508567

Caratteristiche

Stato Nuovo / In costruzione
Riscaldamento Autonomo, a pavimento, alimentato a pompa di calore

Servizi e accessori

Armadio a muro Cancello elettrico Esposizione doppia Fibra ottica Impianto di allarme Mansarda Porta blindata Taverna VideoCitofono

Posizione

Zona: Cà di David (Borgo Roma, Cà di David)

Referente

Immobiliare A.S.

Storico

Pubblicato 03 Apr 2026
Aggiornato 31 May 2026
Sul mercato 58 giorni
ID Annuncio 128000348