Vendita Appartamento

Appartamento

Via Roma, 71, Costa Valle Imagna, Bergamo

Prezzo
Ottimo Affare: 40% sotto la media
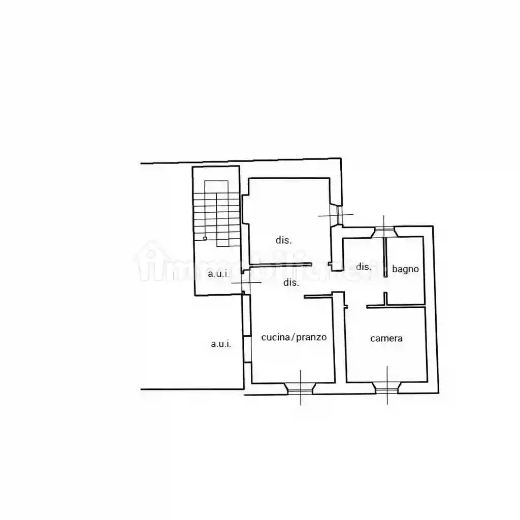
75
mq
3
Locali
2
Camere
1
Bagni

Recensisci questo Immobile

Devi essere registrato per lasciare una recensione.

Accedi

Nessuna recensione ancora. Sii il primo!

Descrizione

?️ Il tuo posto in montagna a meno di un'ora da Bergamo e da Milano
A Costa Valle Imagna, a 1000 metri, nel cuore delle orobie Bergamasche,privato vende 75 mq + soffitta privata in Val Imagna a soli 49.000 €.
Edificio storico di inizio '900, ben conservato. In buono stato e abitabile subito.

-2 camere
- Cucina con zona pranzo
-Posto auto incluso
-tripla esposizione
-centrale e servitissimo

Riscaldamento autonomo — spese minime, bollette contenute.
Si scalda in pochi minuti.

Niente mutuo pesante. Solo montagna, aria pulita e relax.

Caratteristiche

Piano 3
Stato Buono / Abitabile
Riscaldamento Autonomo

Servizi e accessori

Cucina Esposizione sud, est, ovest Infissi esterni in vetro / legno

Posizione

Agenzia Immobiliare

Storico

Pubblicato 07 Apr 2026
Aggiornato 15 Apr 2026
Sul mercato 9 giorni
ID Annuncio 128066964