Vendita Appartamento

Appartamento

Piazzale Pistoia, 8, Treviso, Treviso

Prezzo
Ottimo Affare: 66% sotto la media
111
mq
4
Locali
3
Camere
1
Bagni

Recensisci questo Immobile

Devi essere registrato per lasciare una recensione.

Accedi

Nessuna recensione ancora. Sii il primo!

Descrizione

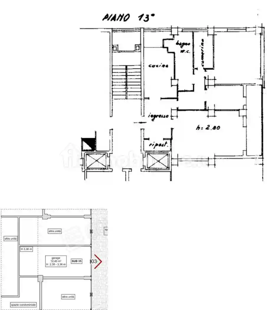
Unità immobiliare ad uso abitativo posta al piano tredicesimo del Condominio denominato “Grattacielo alle Stiore”, sito a Treviso in piazzale Pistoia n. 8, scala D interno n. 70, con annessa autorimessa al piano terra e magazzino posto tra il tredicesimo ed il quattordicesimo piano.
Il “Grattacielo alle Stiore” è sito nelle vicinanze del centro del centro storico della Città di Treviso (TV)La zona dove è ubicato l’immobile è a carattere prevalentemente commerciale, dotata dei principali servizi di trasporto, a ridosso dello svincolo stradale che collega la Strada Regionale n°515 (Noalese), tramite Viale della Repubblica alla Strada Statale n°13 (Pontebbana).
Nel 2022 messa in opera in facciata di isolamento in lana di vetro del tipo ultrapan vn-h rivestito su un lato da velo di vetro nero trattato con appretto idrorepellente - sp. 14 cm – un'intercapedine di aria da 3 cm, e infine finitura di facciata in ceramica e/o porcellana di circa 1,0 cm.
L’appartamento al suo interno ha la seguente distribuzione, l’ingresso dal vano scala condominiale, un ripostiglio, un primo locale adibito a disimpegno, un soggiorno dal quale si accede ad una prima terrazza, un locale adibito a cucina dal quale si accede ad un balcone, un secondo locale adibito a disimpegno, un primo locale adibito a camera singola, un secondo locale adibito a camera singola, un bagno ed infine una camera matrimoniale, per un totale di 3 camere da letto.

L’immobile in pubblicità verrà venduto dal Tribunale tramite un’asta pubblica e presenta delle caratteristiche molto interessanti ed un prezzo estremamente conveniente.
AGL ASTE IMMOBILIARI SRL è la società di consulenza leader in Italia, con oltre 170 uffici su tutto il territorio, che segue il cliente in tutto il percorso relativo all'acquisto tramite asta giudiziaria grazie agli oltre 1.000 professionisti tra geometri, avvocati e commercialisti che gravitano all’interno della nostra rete.
Oltre 10.000 persone, in questi ultimi mesi, hanno dato fiducia ai nostri servizi quali:
- un portale in costante aggiornamento con l’elenco completo di tutti gli immobili delle banche e quelli oggetto di aste, fallimenti e concordati;
- una consulenza tecnica, legale e finanziaria preventiva;
- la ricerca, l’acquisizione e l’analisi della documentazione inerente l’immobile oggetto d’interesse;
- Il sopralluogo con un tecnico incaricato per la visione del bene da aggiudicarsi;
- lo studio di fattibilità economica per la migliore strategia da adottare in asta rendendo così semplice e sicuro l’acquisto di un immobile nel mercato giudiziario;
- la partecipazione all’asta con un nostro professionista;
- l’assistenza completa sulle eventuali problematiche giudiziali prima e dopo l’acquisto;
- un canale preferenziale per l’ottenimento del miglior mutuo disponibile sul mercato, anche del 100 %, grazie agli accordi con oltre 30 istituti di credito per avere così il costo del mutuo inferiore al prezzo di un affitto;
- un accordo esclusivo con i creditori per restituire il debito ad un importo inferiore rispetto a quello in origine evitando, così, la perdita dell’immobile (questo servizio riservato agli esecutati).

Chiama subito il numero e fissa un appuntamento per ottenere la tua consulenza senza impegno e visita il nostro sito https://www.aglasteimmobiliari.it.
FILIALE TREVISO: Via Noalese 61N (zona Aereoporto)
FILIALE MESTRE: Piazzetta Olivotti 11 (si accede da via Degan, laterale di Via Piave)

Le foto pubblicate potrebbero non corrispondere all'immobile specifico, i documenti ufficiali sono visionabili in filiale.

Caratteristiche

Piano T, 13
Ascensore Si
Stato Buono / Abitabile
Riscaldamento Centralizzato, a radiatori, alimentato a gas

Servizi e accessori

Cucina Esposizione esterna Impianto tv centralizzato Infissi esterni in vetro / legno

Posizione

Zona: San Giuseppe - Aeroporto (San Giuseppe, Aeroporto, Santa Maria del Sile, Canizzano)

Referente

AGL Treviso - Venezia

Storico

Pubblicato 08 Apr 2026
Aggiornato 14 Apr 2026
Sul mercato 7 giorni
ID Annuncio 128081420

Recensioni

Vedi tutte
P

Patrizia Visconti

4.3

Se state cercando un'agenzia immobiliare affidabile, vi consiglio di affidarsi a chi vi supporta con entusiasmo e professionalità. Sono stata seguita passo passo durante l'acquisto della mia prima cas...

P

Piero Borgia

4.7

Ho trovato la casa perfetta in pochissimo tempo grazie alla loro rapida risposta e all’ampia scelta di immobili disponibili. Mi hanno seguito passo dopo passo con molta cordialità e professionalità, r...