Vendita Appartamento

Appartamento

Via F.lli Piol App. N 1 UP , 63, Rivoli, Torino

Prezzo
153
mq
3
Locali
1
Camere
1
Bagni

Recensisci questo Immobile

Devi essere registrato per lasciare una recensione.

Accedi

Nessuna recensione ancora. Sii il primo!

Descrizione

La Gabetti propone nel cuore del comune di Rivoli (TO).
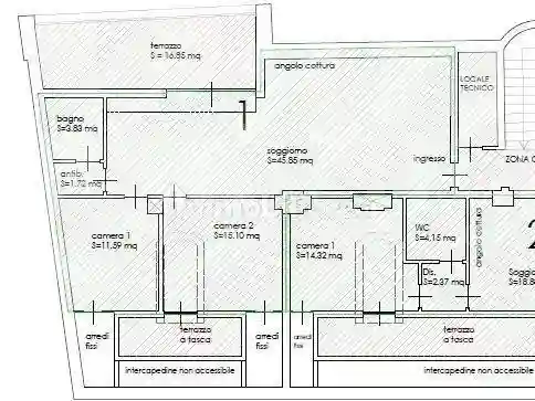
Un intervento che prevede la ristrutturazione della copertura esistente dello stabile di Via Piol 63 con la realizzazione di tre unità abitative, poste all’ultimo piano a destinazione residenziale con l’installazione di tre abbaini con tasca prospicienti su via Piol, due su via Susa e la costruzione di un terrazzo sul lato interno cortile. Internamente sono previste nuove divisioni, la posa di nuovi pavimenti e rivestimenti, l’installazione di porte interne, nuovo impianto elettrico, di riscaldamento e produzione di acqua calda sanitaria tramite caldaia a condensazione e possibilità opzionale di raffrescamento con pompa di calore.
Tutti i materiali utilizzati rispetteranno le normative vigenti in materia di sicurezza e sostenibilità.
Le prestazioni termiche per le opere del tetto saranno conformi al D.Lgs. 192/2005.
La posizione centrale dell'appartamento offre la comodità di avere a portata di mano bar, caffè, ristoranti, farmacie e altro ancora. Inoltre, la presenza di un parcheggio nelle vicinanze facilita gli abitanti e i visitatori. Possibilità nell'interno cortile di due posti auto coperti ad Euro 25.000,00 cadauno.
Consegna prevista per giugno 2026, questo immobile è una fantastica opportunità per chi cerca un appartamento con soggiorno e cucina a vista, due camere da letto un bagno ed una lavanderia. . Non perdere l'occasione di personalizzare gli interni e vivere in un ambiente confortevole e accogliente. Contattami per ulteriori informazioni e per organizzare una visita!
La presente descrizione ha valore puramente indicativo e non costituisce elemento contrattuale ne presupposto contrattuale. Tutte le misure eventualmente riportate devono considerarsi indicative.

Richiedi ora un appuntamento per visionare l’immobile o per una valutazione gratuita e senza impegno del tuo immobile contattaci al tel 011.9566022 – cell 3515047619
mail: rivoli@******

Caratteristiche

Piano 3
Ascensore Si
Stato Ottimo / Ristrutturato
Riscaldamento Autonomo, a radiatori, alimentato a metano

Servizi e accessori

Cancello elettrico Esposizione doppia Fibra ottica Impianto tv centralizzato Infissi esterni in doppio vetro / PVC Mansarda Porta blindata VideoCitofono

Posizione

Referente

Gabetti Franchising Rivoli

Storico

Pubblicato 08 Apr 2026
Aggiornato 15 Apr 2026
Sul mercato 8 giorni
ID Annuncio 128082126

Recensioni

Vedi tutte
S

Susanna Delfino

4.7

Ho trovato la casa ideale a Rivoli grazie a un'agenzia che si è dimostrata estremamente efficiente e cortese fin dai primi passi. Mi sono sentita seguita e aiutata in ogni fase, soprattutto nella gest...

S

Stefania Costantini

4.7

Devo dire che durante tutto il processo mi sono sentita molto più tranquilla grazie alla professionalità e alla serenità con cui sono stata seguita. La gestione delle trattative è stata impeccabile, s...