Vendita Appartamento

Appartamento

Via Pisana, Scandicci, Firenze

Prezzo
47
mq
2
Locali
1
Camere
1
Bagni

Recensisci questo Immobile

Devi essere registrato per lasciare una recensione.

Accedi

Nessuna recensione ancora. Sii il primo!

Descrizione

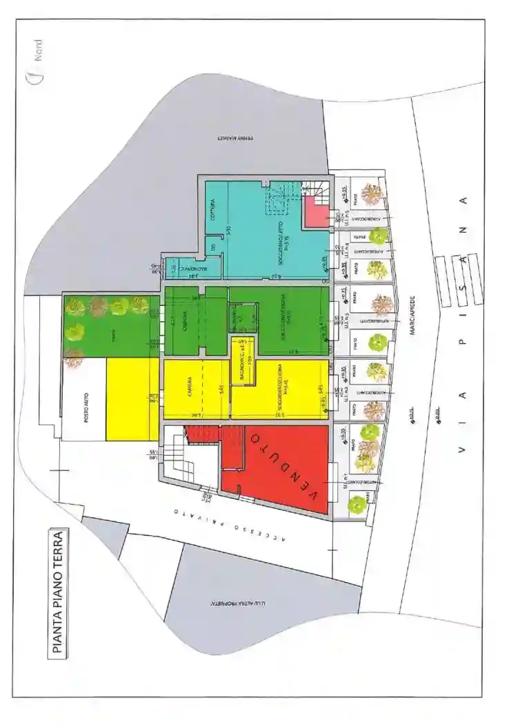
Scandicci/Casellina In piccola palazzina di solo 2 piani e vicino a tutti i servizi, proponiamo appartamenti di varie metrature in fase di completa e accurata ristrutturazione che verranno consegnati a fine 2025 in classe energetica B Accessoriati di aria condizionata
APPARTAMENTO GIALLO (44 mq. c.a)

Appartamento al piano terra con ingresso indipendente tramite resede frontale esclusivo, internamente si compone di soggiorno con angolo cottura in un unico ambiente “open-space” molto accogliente e funzionale, servizio completo ad areazione forzata, camera matrimoniale, il tutto arricchito da un'altra resede tergale ben vivibile di c.a 20 mq. 215.000 €

Caratteristiche

Piano T
Ascensore No
Stato Ottimo / Ristrutturato
Riscaldamento Autonomo, a radiatori, alimentato a metano

Servizi e accessori

Cancello elettrico Esposizione doppia Fibra ottica Impianto tv singolo Infissi esterni in doppio vetro / PVC Porta blindata

Posizione

Referente

Elisabetta Procacci

Storico

Pubblicato 08 Apr 2026
Aggiornato 16 Apr 2026
Sul mercato 8 giorni
ID Annuncio 128101592

Recensioni

Vedi tutte
V

Valeria De Luca

5.0

Mi sono trovata molto bene con questa agenzia immobiliare a Scandicci. Sono stata seguita con professionalità e attenzione, trovando l'appartamento con vista mare che desideravo. La loro precisione ne...