Vendita Appartamento

Appartamento

Corso SKANDEMBERG snc, Lungro, Cosenza

Prezzo
Ottimo Affare: 48% sotto la media
74
mq
3
Locali
1
Camere
1
Bagni

Recensisci questo Immobile

Devi essere registrato per lasciare una recensione.

Accedi

Nessuna recensione ancora. Sii il primo!

Descrizione

Appartamento in asta a LUNGRO (CS) – Corso SKANDEMBERG snc (CAP 87010)

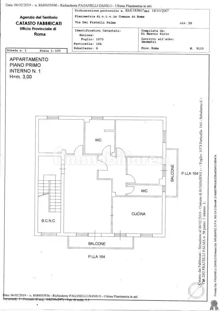
Appartamento mansardato situato in Lungro, Corso Skandemberg snc, in zona centrale. L'edificio di cui fa parte è stato costruito nel 1997 e si trova in un'area mista residenziale/commerciale, con servizi e negozi nelle vicinanze.

Superficie e distribuzione interna
L'appartamento ha una superficie commerciale di 74.89 mq e si trova al terzo ed ultimo piano (sottotetto). È composto da ingresso, ampia zona giorno con angolo cottura, balcone, terrazzo, bagno e una camera da letto. L'altezza interna media è di 2,50 mt.

Caratteristiche e dotazioni
L'appartamento è da completare internamente. È presente l'impianto elettrico sottotraccia (da completare), l'impianto termico (da completare) e l'impianto idrico (da completare). Il riscaldamento è autonomo. I soffitti sono rivestiti in legno.

Contesto e collegamenti
L'immobile si trova in zona centrale, ben servita da farmacie, scuole e supermercati. La superstrada è distante 20 km.

Dati principali dell'asta
Valore di stima: € 25.655,05
Offerta minima: € 7305,75
Rilancio minimo: € 500,00
Risparmio (differenza tra valore di stima e offerta minima): 72%
Data asta: 16/06/2026
Termine presentazione offerte: 08/06/2026 23:59

Punti di forza:
• Libero per la procedura
• Riscaldamento autonomo
• Zona centrale
• Esposizione ottima
• Panoramicità eccellente

Studio di fattibilità pre-asta

Consulenza completa per l'acquisto di immobili all'asta:
• analisi della perizia e verifiche legali
• studio di fattibilità del mutuo con banche convenzionate
• preparazione e deposito dell'offerta
• gestione della gara e assistenza fino al decreto di trasferimento

Tel. +39 06 4006 1824
www.asteflorio.it

Oltre 20.000 aste disponibili sul portale

NB: le immagini potrebbero essere puramente indicative e non rappresentare l'immobile reale. Le coordinate geografiche sono generate automaticamente e potrebbero contenere inesattezze. Tutti i dati saranno verificati in sede di consulenza.

Caratteristiche

Piano 3
Ascensore Si
Stato Ottimo / Ristrutturato
Riscaldamento Autonomo, a radiatori, alimentato a gas

Servizi e accessori

Cucina Esposizione doppia Impianto tv singolo Infissi esterni in vetro / legno Mansarda VideoCitofono

Posizione

Referente

Aste Florio

Storico

Pubblicato 08 Apr 2026
Aggiornato 20 Apr 2026
Sul mercato 12 giorni
ID Annuncio 128109140

Recensioni

Vedi tutte
G

Giulia Lanzoni

4.0

Ricordo ancora il momento in cui ho visto il terreno e subito ho capito che era quello giusto. Sono stata subito seguita con pazienza e rapidità, trovando tutte le risposte alle mie domande senza stre...

D

Diana Geraci

4.3

Ho trovato l'investimento immobiliare perfetto grazie alla loro serietà e alla conoscenza approfondita del mercato locale. Sono stata seguita passo dopo passo, e mi hanno aiutata a fare scelte sicure...

B

Barbara Laurenti

4.0

Grazie mille per avermi seguita con tanta professionalità e competenza! Mi sono trovata davvero bene, sapevo di poter contare su un’agenzia affidabile e conosciuta bene il mercato locale, e così è sta...