Vendita Appartamento

Appartamento

Via Dante Alighieri, 6, Carnate, Monza e Brianza

Prezzo
Buon Prezzo: 15% sotto la media
90
mq
3
Locali
2
Camere
1
Bagni

Recensisci questo Immobile

Devi essere registrato per lasciare una recensione.

Accedi

Nessuna recensione ancora. Sii il primo!

Descrizione

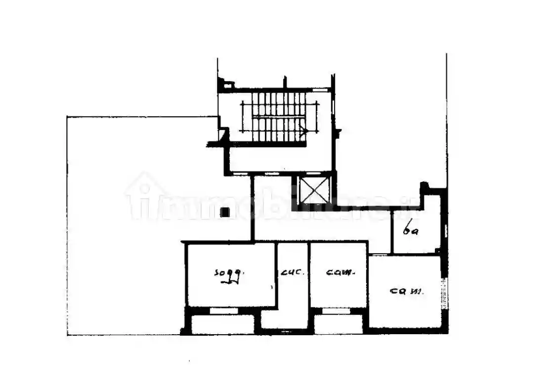
A Carnate, vicino alla stazione, proponiamo in vendita trilocale al sesto piano di una palazzina con ascensore.
L’appartamento si presenta in buone condizioni ed è composto da ingresso, soggiorno luminoso, cucina separata, due camere ampie e bagno finestrato.
Il piano alto garantisce una buona luminosità e una vista aperta.
Completa la soluzione una cantina di pertinenza.

Caratteristiche

Piano 6
Ascensore Si
Stato Buono / Abitabile
Riscaldamento Centralizzato, a radiatori, alimentato a metano

Servizi e accessori

Esposizione esterna Infissi esterni in vetro / legno

Posizione

Referente

Affiliato Fondocasa

Storico

Pubblicato 09 Apr 2026
Aggiornato 15 Apr 2026
Sul mercato 6 giorni
ID Annuncio 128115138

Recensioni

Vedi tutte
L

Luca Ruotolo

5.0

Ricordo ancora quando ho trovato finalmente la casa dei miei sogni a Carnate, dopo anni di affitto. L'agenzia è stata super tempestiva nelle risposte e ha sempre avuto una buona dose di onestà nelle v...

L

Lucia Cannavaro

4.7

Ho trovato l'investimento immobiliare perfetto grazie a un'agenzia molto professionale e paziente, che mi ha seguita passo passo con rapidità e attenzione. Sono stata molto soddisfatta del servizio, p...

V

Veronica Cecchini

4.3

Se cercate un’agenzia immobiliare affidabile, consiglio di affidarmi a questa: sono stata davvero soddisfatta della loro attenzione alle mie esigenze e della professionalità dimostrata. Mi hanno segui...

N

Nicole Crispo

4.0

Rispetto alle mie precedenti esperienze, questa agenzia a Carnate si è dimostrata molto più attenta e precisa. Mi sono sentita seguita con cura e professionalità, aiutata a trovare il bilocale perfett...