Vendita Appartamento

Appartamento

Gambassi Terme, Firenze

Prezzo
Ottimo Affare: 66% sotto la media
131
mq
1
Locali

Recensisci questo Immobile

Devi essere registrato per lasciare una recensione.

Accedi

Nessuna recensione ancora. Sii il primo!

Descrizione

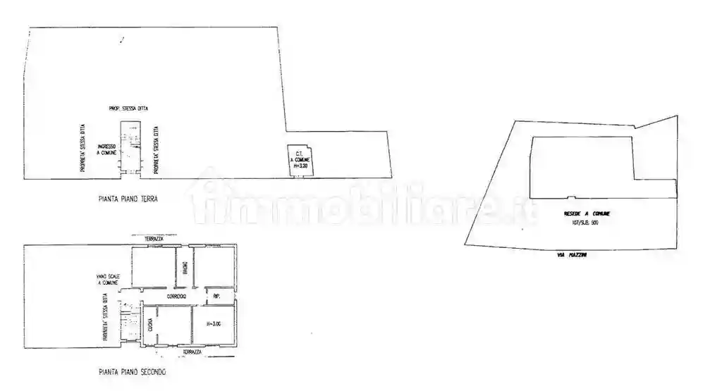
Appartamento in Via Giuseppe Mazzini 39, Gambassi Terme, posto al piano secondo e composto da soggiorno, cucina, due camere e servizi, con due terrazze.

Nel borgo di Badia a Cerreto, proponiamo un appartamento situato al piano secondo di un fabbricato composto da tre livelli fuori terra, con accesso tramite vano scala condominiale.
L'abitazione presenta una distribuzione ampia e funzionale, composta da soggiorno, cucina, sala da pranzo, due camere, bagno, ripostiglio e disimpegno. Gli ambienti risultano ben separati e adatti sia alla vita familiare che a una possibile riorganizzazione degli spazi.
Completano la proprietà due terrazze: una accessibile dalla sala da pranzo e da una delle camere, con affaccio sulla via principale, e l'altra collegata al soggiorno, con affaccio sul lato tergale, garantendo così una doppia esposizione e buona luminosità.
L'immobile risulta attualmente locato con contratto stipulato antecedentemente al pignoramento, elemento da considerare in ottica di investimento.

Soluzione interessante per chi cerca un immobile da reddito o una futura abitazione in contesto tranquillo, con spazi ben distribuiti e presenza di aree esterne.
.
-- PROFESSIONE ASTE --

L'immobile viene venduto dal Tribunale tramite asta giudiziaria e questo annuncio non vuole essere sostitutivo dei documenti ufficiali relativi alla vendita giudiziaria. Professione Aste è una società di consulenza che accompagna il cliente in tutto il percorso relativo all'acquisto di un immobile in asta giudiziaria, con l'unico obiettivo di massimizzare il rapporto qualità prezzo per l'utente finale. Serietà, professionalità e competenza ci contraddistinguono da sempre, rendendoci un punto di riferimento nel settore, in tutto il territorio nazionale. Chiamaci per avere tutte le informazioni necessarie, i nostri consulenti legali sono a tua disposizione per accompagnarti dalla ricerca dell'immobile fino alla consegna delle chiavi, in piena sicurezza e con il massimo rispetto di tutti gli attori in gioco, con la possibilità di stipulare la polizza assicurativa Immobile Protetto. Se sei l'esecutato proprietario dell'immobile contattaci, faremo il possibile per cercare di risolvere il tuo problema. Se sei un consulente immobiliare chiamaci, ti daremo tutte le informazioni necessarie per entrare nel nostro team.

L'esattezza dei dati pubblicati verrà confermata in sede di consulenza.

Per appuntamenti e informazioni, contattateci alla mail info@professioneaste.it oppure ai n° tel. 375 6111 457 - 055 9751 135. Classe Energetica: Non indicata

Caratteristiche

Ascensore No

Posizione

Referente

Professione Aste

Storico

Pubblicato 10 Apr 2026
Aggiornato 25 Apr 2026
Sul mercato 16 giorni
ID Annuncio 128123854

Recensioni

Vedi tutte
R

Roberta Cuomo

4.7

Ricordo ancora il momento in cui ho trovato il terreno perfetto per costruire, la sensazione di essere seguita passo dopo passo da un team cortese e serio. La loro professionalità mi ha aiutata a capi...

R

Rita Iannone

4.3

Voglio ringraziare di cuore per l’ottima assistenza ricevuta: sono stata seguita con molta cortesia e professionalità, anche grazie alla loro flessibilità negli orari che ha reso tutto più semplice. H...