Vendita Appartamento

Appartamento

Via Montescaglioso, Matera, Matera

Prezzo
53
mq
2
Locali
1
Camere
1
Bagni

Recensisci questo Immobile

Devi essere registrato per lasciare una recensione.

Accedi

Nessuna recensione ancora. Sii il primo!

Descrizione

L’agenzia immobiliare MaterHouse propone in vendita, nella rinomata zona Sud di Matera, precisamente nel suggestivo contesto di Borgo San Francesco, un’esclusiva unità abitativa che fonde design d'avanguardia e natura. La vera "chicca" di questo intervento è lo spettacolare panorama: una distesa immensa di verde che abbraccia l’intero complesso residenziale, offrendo una rarissima sensazione di libertà e silenzio assoluto.
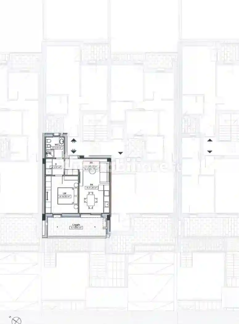
L’immobile, con consegna prevista per fine 2027, è situato al primo piano e si sviluppa su una superficie di 53,71 mq. Questo raffinato bilocale vanta il privilegio di una distribuzione degli spazi interni ed esterni studiata nei minimi dettagli: un ampio balcone terrazzato è posto a servizio della zona giorno, risultando ideale per i momenti di convivialità all'aperto, per colazioni panoramiche o semplicemente per godere della vista mozzafiato sul verde circostante.
Progettata secondo la filosofia Full-Electric, la residenza assicura il massimo risparmio energetico in Classe A4. Il comfort termico è garantito da una pompa di calore autonoma per riscaldamento e raffrescamento a pannelli radianti, integrata da un sistema di deumidificazione canalizzato e impianto fotovoltaico dedicato. L’attenzione tecnica è maniacale: struttura antisismica, isolamento a cappotto ad alte prestazioni e un sistema di insonorizzazione all'avanguardia sotto ogni massetto. Gli infissi in PVC con vetrocamera basso-emissivo e le tapparelle motorizzate completano un involucro edilizio impeccabile.
All’interno, le finiture di pregio sono personalizzabili: dai pavimenti in gres alle porte di design, ogni dettaglio riflette l'alta qualità costruttiva del progetto. Completa la soluzione un comodo box auto con serranda automatizzata. Vivere a Borgo San Francesco significa scegliere un’abitazione tecnologicamente proiettata nel futuro, immersa nel verde senza rinunciare ai servizi. Un acquisto unico per chi cerca l’eccellenza nel panorama lucano.

Caratteristiche

Piano 1
Ascensore Si
Stato Nuovo / In costruzione
Riscaldamento Autonomo, a pavimento, alimentato a pompa di calore

Servizi e accessori

Cancello elettrico Esposizione esterna Impianto di allarme Impianto tv singolo Infissi esterni in triplo vetro / PVC Porta blindata VideoCitofono

Posizione

Referente

Materhouse Di Tiziana Di Cecca

Storico

Pubblicato 10 Apr 2026
Aggiornato 16 Apr 2026
Sul mercato 6 giorni
ID Annuncio 128133256

Recensioni

Vedi tutte
D

Daniele Galasso

4.7

Ho trovato l'appartamento perfetto a Matera grazie a un'agenzia che ha gestito tutto con grande professionalità e attenzione ai dettagli. Durante la trattativa, sono rimasto davvero sorpreso da come s...

A

Alessandro Cirillo

4.3

Ho scelto questa agenzia perché ho sentito parlare molto della loro attenzione alle esigenze del cliente e della professionalità con cui accompagnano durante le visite. Sono stato molto seguito e aiut...

A

Alessandra Parisi

4.3

Ho trovato un’agenzia affidabile e professionale che mi ha accompagnata passo dopo passo nella vendita del mio appartamento di famiglia. Sono stata seguita con molta cura dei dettagli e attenzione all...