Vendita Villa

Villa

Via 25 Aprile, 31, Lesignano de' Bagni, Parma

Prezzo
Ottimo Affare: 28% sotto la media
328
mq
5+
Locali
4
Camere
3
Bagni

Recensisci questo Immobile

Devi essere registrato per lasciare una recensione.

Accedi

Nessuna recensione ancora. Sii il primo!

Descrizione

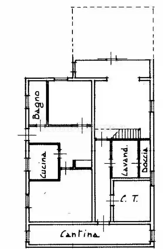
Casa unifamiliare con due unità abitative indipendenti. Un'Occasione Unica! Scopri questa splendida villa, situata in una posizione privilegiata, che offre un'ottima opportunità per famiglie numerose o per chi desidera vivere in due unità abitative separate. Con giardino privato e un cortile esterno, questo immobile è perfetto per godere di momenti di relax all'aria aperta. Al piano rialzato, l'ingresso indipendente dal giardino conduce a un luminoso soggiorno e a una cucina con tinello, ideali per trascorrere piacevoli serate in famiglia. Le tre camere da letto, di cui due matrimoniali e una singola, garantiscono spazio e comfort per tutti, completa la zona notte un ampio bagno. La scala interna offre un comodo accesso alla taverna, al garage e alla cantina, rendendo la vita quotidiana ancora più pratica. La seconda unità abitativa al piano terra è dotata di ingresso privato, soggiorno con cucina a vista dotata di caldaia autonoma, offre la possibilità di ospitare amici o parenti in totale indipendenza. Con un ampio soggiorno che può trasformarsi in una seconda camera e una camera matrimoniale, questa soluzione è versatile e funzionale. Non mancano i servizi come il bagno con zona lavanderia e il locale tecnico per la caldaia. La casa dispone di un cappotto termico e un tetto rivisto, serramenti con doppi vetri, questa villa è pronta per essere abitata. Gli impianti sono funzionanti e le caldaie sostituite di recente assicurano un riscaldamento efficiente. Con una superficie commerciale di 290 m² e un appezzamento di 700 m², questa casa è la scelta ideale per chi cerca spazio e comfort. Non perdere l'opportunità di visitare questa villa unica! Contattaci per maggiori informazioni e per prenotare una visita.

Caratteristiche

Ascensore No
Stato Ottimo / Ristrutturato
Riscaldamento Autonomo, a radiatori, alimentato a metano

Servizi e accessori

Caminetto Cancello elettrico Esposizione esterna Impianto tv singolo Infissi esterni in doppio vetro / legno Porta blindata Taverna VideoCitofono

Posizione

Referente

BBusiness Immobiliare

Storico

Pubblicato 11 Apr 2026
Aggiornato 15 Apr 2026
Sul mercato 5 giorni
ID Annuncio 128137542

Recensioni

Vedi tutte
P

Piero Filippi

5.0

Ho trovato un team molto cortese e paziente che mi ha seguito passo dopo passo durante l'acquisto della mia prima casa. Sono stato molto soddisfatto dell'attenzione ai dettagli e della disponibilità d...

M

Maurizio Cervi

5.0

Ho scelto questa agenzia perché conoscono bene il mercato di Parma e sapevo che avrei avuto un'assistenza seria e personalizzata. Mi hanno aiutato a trovare la casa perfetta vicino ai miei genitori an...

A

Antonio Margiotta

4.7

Le mie precedenti esperienze con agenzie immobiliari erano state spesso complicate e poco chiare; questa volta invece ho trovato tutto molto più semplice e diretto. L'agenzia mi ha seguito passo dopo...

M

Matteo Landini

4.3

Ricordo ancora il momento in cui ho trovato l’ufficio perfetto per la mia attività, un'esperienza che mi ha dato molta tranquillità. L’agenzia è stata molto professionale, seguendomi passo passo anche...