Vendita Palazzo - Stabile

Palazzo - Stabile

loc. Ponte di Lugagnano strada Vecciatica, Monchio delle Corti, Parma

Prezzo
Ottimo Affare: 78% sotto la media
468
mq
5+
Locali

Recensisci questo Immobile

Devi essere registrato per lasciare una recensione.

Accedi

Nessuna recensione ancora. Sii il primo!

Descrizione

NUOVA PROPOSTA

IMMOBILE DISPONIBILE

Stabile sito nel comune di Lugnano in Teverina (TR), in Via Ilaria Alpi.
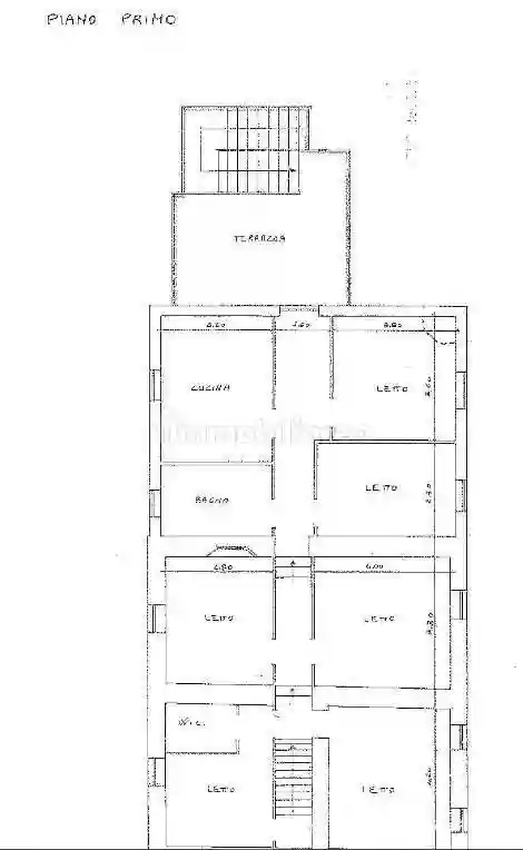
Intero su complesso immobiliare comprensivo di:a) locale commerciale ad uso bar posto al piano terreno, composto da due vani adibiti a cucina, disimpegno, bagno per il personale con antibagno/spogliatoio, dispensa, bagno per il pubblico con antibagno, sala da pranzo e locale bar, con tettoia in lato ovest,con cantina di pertinenza posta al piano seminterrato e con porzione di area cortilizia di pertinenza sui lati est e sud, nonche' due porzioni di area cortilizia in proprieta' esclusiva sul lato ovest;b) autorimessa con annesso ripostiglio , posti al piano terreno;c) appartamento posto al piano primo, composto da corridoio, soggiorno, cucina, bagno, cinque vani (di cui uno con w.c.) e terrazzo;d) tre vani ad uso cantina posti al piano seminterrato (collegati al piano terreno tramite scala interna).Superficie commerciale complessiva:Mq. 468

Per te la possibilità di ricevere una consulenza telefonica personalizzata per ottenere un preventivo per il mutuo a condizioni vantaggiose con i nostri partner, il consulente ti fornirà tutte le informazioni e ti guiderà nelle possibilità di aggiudicarti questo affare.
L'immobile pubblicato al momento è sottoposto a procedura di vendita legale;
Gescom srl è specializzata nella ricerca e pianificazione di investimenti
immobiliari secondo innovative strategie di acquisto.
Contattaci subito per una consulenza telefonica con uno dei nostri esperti, che ti aiuterà a valutare canali distinti di acquisto dell’immobile, come la procedura di vendita diretta senza ricorrere all’asta (d.lgs. 149/2022) e la possibilità di stralcio immobiliare.
Le informazioni sopra riportate non sostituiscono l'avviso pubblicato dal
Tribunale competente né l'integrale gestione da parte del delegato designato.
Il testo e le specifiche indicate nella presente pagina sono generate
automaticamente tramite l’utilizzo di software e/o da A.I. Gescom srl invita a verificare le formazioni e i materiali multimediali sui canali ufficiali, declinando fin d'ora ogni responsabilità su eventuali errori o incongruenze.
Gescom srl, leader negli stralci immobiliari e nella consulenza tecnico-legale, non si occupa di attività di intermediazione immobiliare di cui alla legge 39/89.
Cl. energ. da verificare.
Le foto pubblicate nel presente annuncio sono indicative e non esaustive della tipologia, qualità, consistenza e indicazione geografica dell'immobile.

Caratteristiche

Ascensore No
Stato Buono / Abitabile
Riscaldamento Autonomo, alimentato a metano

Servizi e accessori

Esposizione nord Impianto di allarme Porta blindata

Posizione

Referente

GESCOM

Storico

Pubblicato 11 Apr 2026
Aggiornato 15 Apr 2026
Sul mercato 5 giorni
ID Annuncio 128141656

Recensioni

Vedi tutte
I

Ivano Coppola

5.0

Ho comprato una casa al mare e sono davvero felice del risultato. L’agenzia è stata rapida e molto competente nella trattativa, mi ha seguito passo passo e ha fatto tutto con grande professionalità. È...

I

Ivan Prandini

4.7

Durante il processo mi sono sentito molto seguito e sicuro, grazie alla professionalità dell’agenzia. Ho trovato facilmente il magazzino perfetto per la mia azienda tra un’ampia scelta di immobili dis...