Indietro
Vendita Rustico - Casale

Rustico - Casale

villeto, Visone, Alessandria

Prezzo
Ottimo Affare: 56% sotto la media
297
mq
1
Locali
1
Bagni

Recensisci questo Immobile

Devi essere registrato per lasciare una recensione.

Accedi

Nessuna recensione ancora. Sii il primo!

Descrizione

Visone, a meno di 10 minuti dalla città termale di Acqui Terme, a pochi passi dal centro del paese dove troviamo tutti i servizi e collocato nel contesto di un terreno di circa 11.400 di in dolce declivio tutto a prato e coltivi, proponiamo una proprietà con all'interno un fabbricato di 297 mq.
Il fabbricato è attualmente censito come capannone artigianale e magazzino, all'interno è suddiviso in 2 vani dei quali uno comprende quasi tutta la superficie. C'è anche una zona soppalcata ed è presente un gabinetto. Le condizioni sono mediocri, il pavimento in cemento. E' possibile volendo recuperare tutta la volumetria esistente e riconvertirla ad abitativo.
La possibilità di utilizzare la struttura per più scopi, abitativo o artigianale e magazzino così come attualmente si trova e la collocazione in zona appena fuori dal centro, in mezzo al verde, rendono questa proprietà veramente interessante.
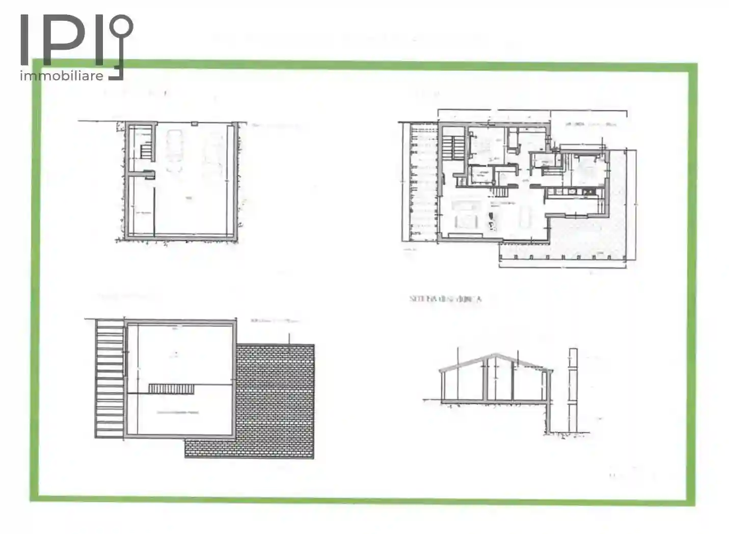
La possibilità di riconvertire la volumetria esistente, nella totalità o anche parzialmente è assicurata dalle regole vigenti dell'attuale piano regolatore del comune. L'attuale proprietà ha già fatto un progetto di massima che ha avuto il consenso formale da parte del comune stesso. Ovviamente il disegno progettuale è uno studio indicativo ed ovviamente può essere modificato a piacimento sempre nell'ambito massimo della volumetria attualmente esistente.
La collocazione è veramente incantevole, un unico appezzamento prativo e coltivo che scende leggermente sino a confinare con il torrente Visone a tre minuti dal centro del paese che seppur piccolo è fornito di tutti i servizi che servono per una comoda dimora. L'accesso al fabbricato è assicurato da strada comunale e sono presenti sia l'allacciamento all'acquedotto comunale sia alla rete elettrica. Il servizio igienico che si trova attualmente nel capannone scarica in un pozzo nero.
Nel caso di recupero a fini abitativi tramite demolizione e ricostruzione le regole urbanistiche in vigore consentono il recupero ed utilizzo delle macerie per la nuova edificazione di tutto il fabbricato ma con esclusione del tetto che essendo in eternit deve essere smaltito a parte.
Ribadiamo che i disegni di progetto che vi proponiamo nelle foto sono assolutamente indicativi e possono essere oggetto di tutte modifiche sia volumetriche che estetiche ritenute necessarie.
Occasione molto interessante.

Caratteristiche

Piano T
Ascensore No
Stato Buono / Abitabile

Posizione

Referente

Agenzia Immobiliare IPI

Storico

Pubblicato 09 Apr 2026
Aggiornato 14 Apr 2026
Sul mercato 5 giorni
ID Annuncio 128147678

Recensioni

Vedi tutte
A

Andrea Nardone

4.7

Le mie esperienze precedenti con agenzie immobiliari erano state un po’ confuse, ma questa volta ho trovato un percorso diverso: più sereno e preciso. Sono stato seguito con grande professionalità e s...

N

Nino Laterza

4.3

Ho trovato l’appartamento perfetto in poco tempo grazie a un’agenzia molto efficace. Sono stato molto soddisfatto dell’assistenza, soprattutto per la gestione rapida e precisa di tutta la burocrazia....

A

Arturo La Rosa

4.3

Ricordo ancora quel momento in cui ho visto l’annuncio e ho deciso di affidare loro la vendita dell’appartamento di famiglia. Sono stato molto colpito dalla loro professionalità e serietà, sono stati...

L

Lello Iannone

4.0

Se stai cercando un'agenzia immobiliare affidabile a Cairo Montenotte, ti consiglio di affidarti a questa. Mi sono trovato molto bene: sono stato seguito con serietà e professionalità in ogni fase del...