Vendita Casa indipendente

Casa indipendente

Via Lavacca Domenico, 16-18, Grumo Appula, Bari

Prezzo
Ottimo Affare: 57% sotto la media
100
mq
2
Locali
1
Camere
2
Bagni

Recensisci questo Immobile

Devi essere registrato per lasciare una recensione.

Accedi

Nessuna recensione ancora. Sii il primo!

Descrizione

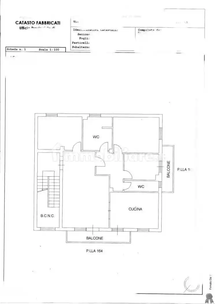
GRUMO APPULA - SOLUZIONE INDIPENDENTE CON TERRAZZO

Sogni l'indipendenza totale a un prezzo imbattibile? Nel cuore di Grumo Appula, proponiamo in vendita una soluzione terra-cielo dalle grandi potenzialità, ideale per chi desidera creare una casa su misura o per chi cerca un investimento sicuro e redditizio.

La casa si sviluppa su due livelli, al piano terra troviamo il soggiorno, la camera da letto, un bagno e un ampio ripostiglio. Al primo piano, invece, è presente la cucina, il bagno di servizio e un terrazzino a livello.

L'immobile è da ristrutturare, offrendo la possibilità di ridistribuire gli spazi secondo le proprie esigenze. La totale indipendenza e l'assenza di spese condominiali rendono questa proposta particolarmente interessante, soprattutto in virtù del prezzo molto contenuto.

Questa soluzione è perfetta come "prima casa" per una giovane coppia che vuole smettere di pagare l'affitto, oppure come casa vacanze/B&B data la posizione strategica e l'autonomia della struttura.

Caratteristiche

Ascensore No
Stato Da ristrutturare

Posizione

Referente

RE/MAX Habitare

Storico

Pubblicato 10 Apr 2026
Aggiornato 27 Apr 2026
Sul mercato 17 giorni
ID Annuncio 128153880

Recensioni

Vedi tutte
C

Cinzia Barone

4.0

Ricordo ancora quando ho trovato il magazzino perfetto per la mia azienda, grazie alla loro attenzione ai dettagli e alla disponibilità costante. Sono stata davvero colpita dalla cura che hanno messo...