Vendita Appartamento

Appartamento

Via Napoleona, Como, Como

Prezzo
Ottimo Affare: 71% sotto la media
69
mq
3
Locali
2
Camere
1
Bagni

Recensisci questo Immobile

Devi essere registrato per lasciare una recensione.

Accedi

Nessuna recensione ancora. Sii il primo!

Descrizione

OTTIMA OCCASIONE - ASTA IMMOBILIARE

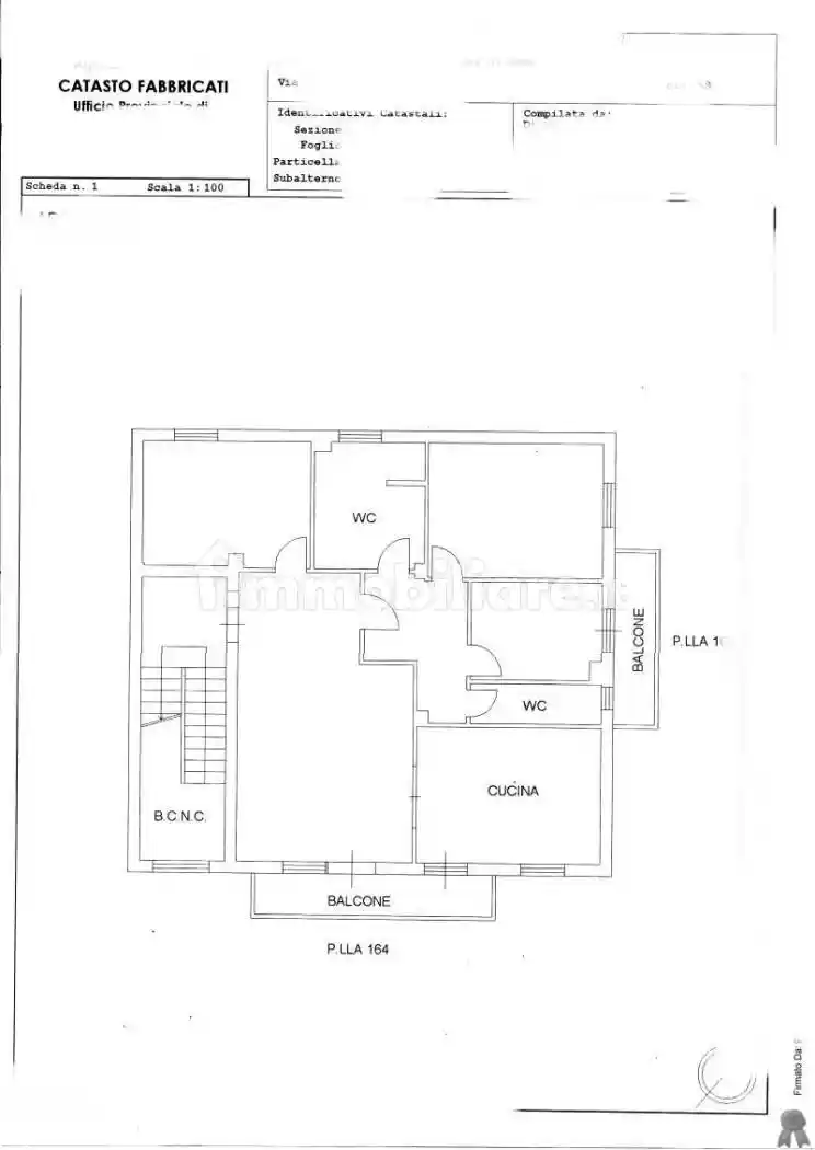
APPARTAMENTO, al piano primo, e posto auto coperto di pertinenza, al piano interrato, che sviluppano una superficie commerciale lorda di mq 69,77 - Via Napoleona

...

GLI AVVOCATI SPECIALIZZATI IN ASTE IMMOBILIARI DI SIMPLEX DOMUS GARANTISCONO UN ACQUISTO FACILE, SICURO ED ECONOMICO.

CHIAMA PER AVERE MAGGIORI INFORMAZIONI.

Il team di Avvocati di Simplex Domus è specializzato anche in acquisto in pre-asta e acquisto di crediti deteriorati NPL.

Comprare un immobile all’asta è una eccellente opportunità economica.

Ricordiamo che è possibile comprare un immobile all'asta tramite un mutuo e che tutti i clienti di Simplex Domus ricevono una consulenza mutuo gratuita.

Più di 1000 famiglie e aziende hanno scelto Simplex Domus.

Tutti gli annunci immobiliari hanno scopo pubblicitario e Simplex Domus non può garantire la totale esattezza o contemporaneità di tutte le informazioni riportate. Pertanto consigliamo di visionare tutta la documentazione del tribunale tramite un nostro Avvocato specializzato.

Grazie per aver visionato il nostro annuncio.

Caratteristiche

Piano 1
Ascensore Si
Stato Buono / Abitabile
Riscaldamento Autonomo, a radiatori, alimentato a gas

Servizi e accessori

Cancello elettrico Esposizione doppia Fibra ottica Impianto tv singolo Infissi esterni in doppio vetro / PVC Porta blindata VideoCitofono

Posizione

Zona: Como Sole (Lora, Como Sole)

Referente

Simplex Domus S.R.L.

Storico

Pubblicato 11 Apr 2026
Aggiornato 16 Apr 2026
Sul mercato 4 giorni
ID Annuncio 128160708

Recensioni

Vedi tutte
G

Greta Capraro

4.7

Durante il processo mi sono sentita molto rassicurata, perché sono stata seguita passo passo e tutto è stato molto chiaro. Ho trovato l’agenzia davvero efficiente, con risposte rapide e spiegazioni se...