Vendita Appartamento

Appartamento

Str. Cimitero, Monzambano, Mantova

Prezzo
Buon Prezzo: 22% sotto la media
99
mq
2
Locali
1
Camere
1
Bagni

Recensisci questo Immobile

Devi essere registrato per lasciare una recensione.

Accedi

Nessuna recensione ancora. Sii il primo!

Descrizione

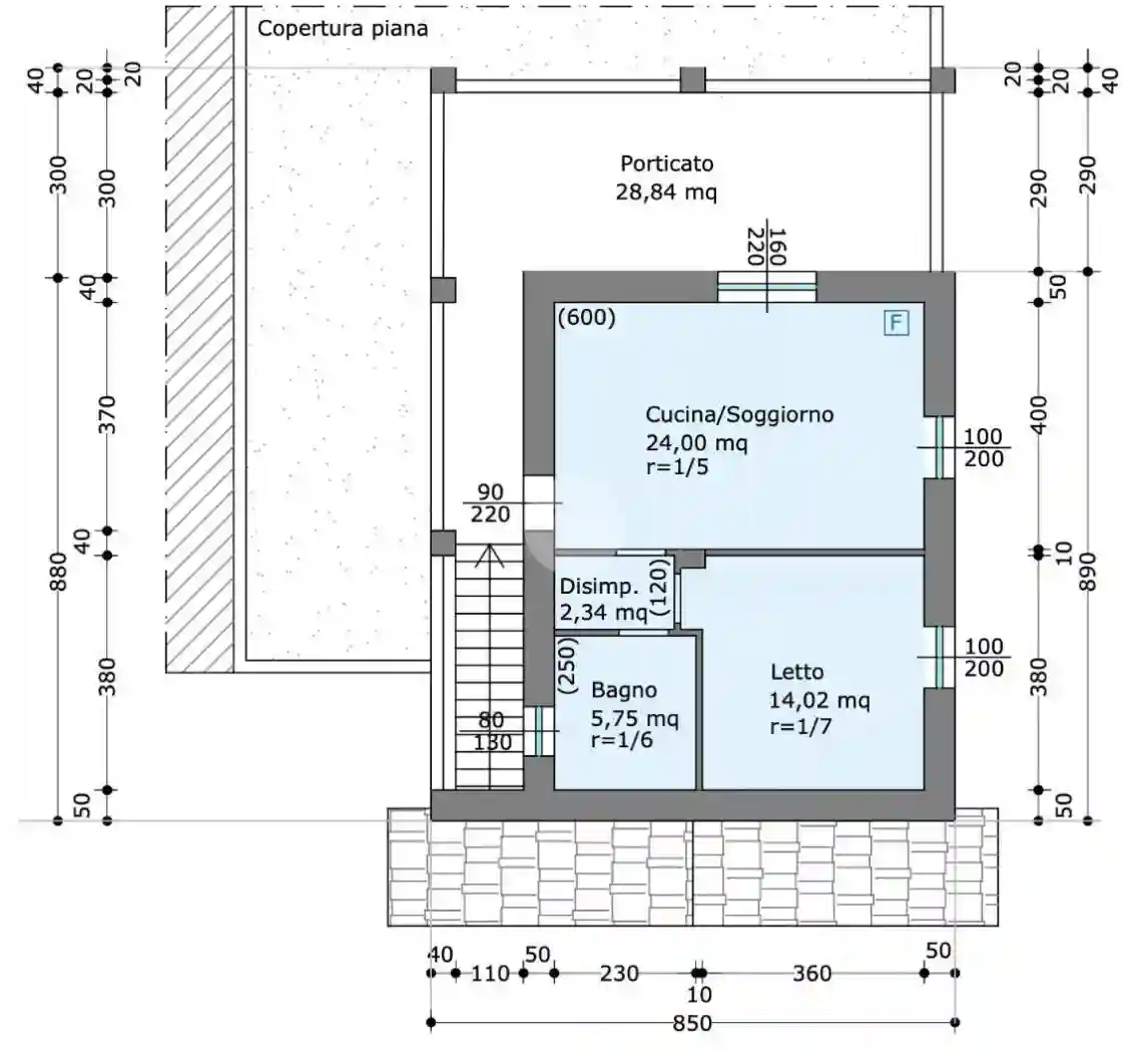
MONZAMBANO - Bilocale piano primo con ampio terrazzo – Nuova costruzione
In nuovo e tranquillo contesto residenziale a Monzambano, proponiamo bilocale al piano primo con ampio terrazzo, perfetto per coppie, single o come investimento.
Disponibile con consegna prevista per primavera 2027.
L’appartamento è composto da:
-Soggiorno con cucina a vista, luminoso e funzionale;
-Accesso diretto al terrazzo;
-Camera matrimoniale spaziosa;
-Bagno finestrato.
Spazio esterno:
-Ampio terrazzo vivibile, ideale per momenti di relax o convivialità.
Completano la proprietà:
-Posto auto coperto;
-Cortile di accesso privato.
Dotazioni:
-Ottima efficienza energetica;
-Riscaldamento a basso consumo;
-Finiture moderne e personalizzabili;
VUOI QUESTA CASA MA DEVI VENDERE LA TUA? INIZIAMO CON UNA VALUTAZIONE GRATUITA E SENZA IMPEGNO!

Caratteristiche

Piano R
Ascensore No
Stato Nuovo / In costruzione
Riscaldamento Autonomo, a pavimento

Posizione

Referente

Affiliato Tecnorete: NEW CASTLE SAS

Storico

Pubblicato 13 Apr 2026
Aggiornato 16 Apr 2026
Sul mercato 3 giorni
ID Annuncio 128233272

Recensioni

Vedi tutte
D

Diana Rosati

5.0

Appena ho varcato la soglia del bilocale, ho notato subito l’attenzione ai dettagli e la cura nella presentazione. Sono stata seguita con professionalità e serietà, sentendomi sempre supportata durant...

E

Emma Landini

4.7

Se cercate un’agenzia seria e affidabile, vi consiglio di affidarmi a loro. Mi sono trovata davvero bene, sono stata seguita passo dopo passo con molta cura dei dettagli e una conoscenza approfondita...