Vendita Appartamento

Appartamento

Via Andrea Doria, 4, Villasanta, Monza e Brianza

Prezzo
107
mq
3
Locali
2
Camere
2
Bagni

Recensisci questo Immobile

Devi essere registrato per lasciare una recensione.

Accedi

Nessuna recensione ancora. Sii il primo!

Descrizione

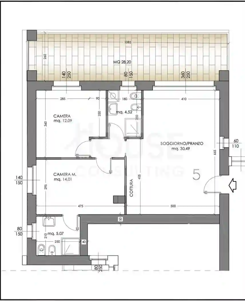
Residenza Le Magnolie – Appartamento Rif. 5

Distinto trilocale di 88 mq con terrazzo di 28 mq, situato al piano primo della prestigiosa Residenza Le Magnolie di via Doria di Villasanta.

Un’abitazione moderna e funzionale, caratterizzata da luminosità, finiture di pregio e un elevato comfort abitativo.

Composizione:
- Ingresso
- Ampio soggiorno/pranzo con vetrata scorrevole e accesso diretto al terrazzo
- Cucina a vista
- Due ampie camere
- Due Bagni finestrati

Gli interni sono personalizzabili grazie a un capitolato di alta qualità, che prevede materiali ricercati come ceramiche di grandi formati (fino a 90x90 cm)
Le residenze sono progettate secondo i più moderni standard di efficienza energetica e comfort:

- Riscaldamento a pavimento autonomo
- Predisposizione per ventilazione meccanica controllata, condizionamento e deumidificazione
- Pannelli fotovoltaici
- Serramenti ad alte prestazioni con tapparelle elettriche e zanzariere

Completano la proprietà una cantina e la possibilità di box singolo o doppio con serranda automatica.

Per informazioni:
House & Consulting Arcore – Tel. 039 6012742
www.hcarcore.it

Le immagini hanno scopo puramente illustrativo e non costituiscono elemento contrattuale.
Le misure riportate sono indicative e possono subire variazioni in fase di realizzazione.

Caratteristiche

Piano 1
Ascensore Si
Stato Nuovo / In costruzione
Riscaldamento Autonomo, a pavimento, alimentato a pompa di calore

Servizi e accessori

Porta blindata VideoCitofono

Posizione

Referente

House & Consulting

Storico

Pubblicato 15 Apr 2026
Aggiornato 21 Apr 2026
Sul mercato 7 giorni
ID Annuncio 128273420

Recensioni

Vedi tutte
R

Rosa Palumbo

4.7

Se cercate un’agenzia immobiliare seria, vi consiglio di rivolgervi a questa: mi sono trasferita ad Arcore per lavoro e avevo bisogno di trovare subito un affitto. Sono stata molto soddisfatta della l...

F

Federica Maffeis

4.3

Se cercate un'agenzia immobiliare affidabile, consiglio di scegliere chi offre chiarezza e competenza. Mi sono trovata molto bene grazie alla loro capacità di spiegare ogni passaggio e alla conoscenza...