Vendita Villa

Villa

Via Dosa, 15, Cessalto, Treviso

Prezzo
Ottimo Affare: 60% sotto la media
1121
mq
5+
Locali
3
Camere
3
Bagni

Recensisci questo Immobile

Devi essere registrato per lasciare una recensione.

Accedi

Nessuna recensione ancora. Sii il primo!

Descrizione

Eretto agli inizi del 1700 e vincolato dalla Soprintendenza di Monumenti del Veneto, Palazzo Vio - caratterizzato dalla tipica pianta delle Ville Venete - ristrutturato totalmente dal 2012 al 2014.
Il compendio immobiliare, di elevato pregio architettonico, viene posto in vendita con il mobilio ed i beni mobili in esso presenti.
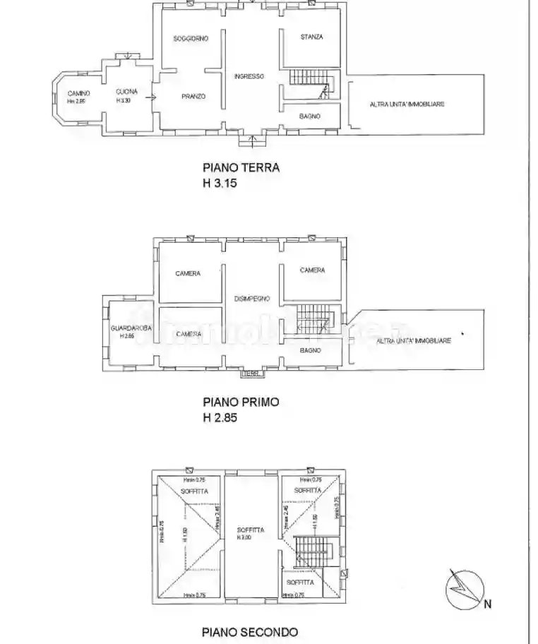
L'edificio, che si sviluppa su due piani fuori terra con sottotetto in forma di grande abbaino, risulta avere la classica pianta delle ville venete, con salone centrale e stanze laterali. Al piano primo vi è un salone pavimentato in terrazzo alla veneziana ove si legge la data del 1759.
Molto interessanti si presentano le facciate principali ove nella zona centrale al piano terra e primo si hanno aperture a tutto sesto affiancate da finestre rettangolari con l'abbaino centrale incorniciato in maniera marcata.
Sulla facciata sud si sviluppa un ampio camino "a valesana" con posto all'interno un focolare in mattoni di pregevole fattura. Sui prospetti laterali, all'ultimo piano si aprono delle finestre ovali ed infine sul lato nord si sviluppa un'ala a due piani adibita ad alloggio custode, il cui esterno è caratterizzato da una cornice in mattoni di buona fattura.
Energeticamente con l'intervento di ristrutturazione è stata migliorata la situazione originaria con la posa di vetrocamera sui fori esterni, con isolamento sul tetto e posa cappotto esterno sulla pertinenza a nord. Due caminetti marmorei sono presenti al piano terra oltre al focolare della valesana.

L'immobile risulta posizionato in aperta campagna, nella frazione di Santa Maria di Campagna, attorniato da aree agricole coltivate e da edificazioni residenziali e rurali sparse. L'immobile principale risulta così costituito:
-Piano terra, avente altezza interna pari a ml. 3.15, con il locale cucina con altezza ml. 3.30 e il locale camino con altezza pari a ml. 2.95. Risulta composto da salone di ingresso, soggiorno, pranzo, cucina e camino, bagno, stanza e vano scale. La sua superficie lorda è pari a mq. 155.50.
-Piano primo, avente altezza pari a ml. 2.85, con guardaroba laterale con altezza ml.2.65 ed è composto da ampio salone centrale con piccolo terrazzino d'affaccio, n. 3 camere, un guardaroba, un bagno (allo stato grezzo) e vano scala. La sua superficie lorda è pari a mq. 143.70.
-Piano secondo composto da soffitta centrale avente altezza media pari a ml. 3.00 е superficie lorda pari a mq. 40.50 e da locali ad uso soffitta posti nelle parti laterali, e vano scala aventi altezza media pari a ml. 1.55, aventi una superficie pari a mq. 84.50.
L'alloggio del custode invece risulta così composto:
-piano terra avente altezza pari a ml. 2.40 composto da un locale adibito ad ingressocucina-soggiorno con scala in legno a vista per accesso al piano primo, avente una superficie lorda pari a mq. 40.30,
-piano primo avente altezza media pari a ml. 2.67 composto da camera, ripostiglio e bagno. La sua superficie lorda è pari a mq. 39.80.
La zona nella quale ricade risulta priva dei principali servizi e l'immobile risulta collocato a circa 35 Km. dal capoluogo della provincia di Treviso e a circa 4 Km. dal capoluogo del Comune.

L’immobile in pubblicità verrà venduto dal Tribunale tramite un’asta pubblica e presenta delle caratteristiche molto interessanti ed un prezzo estremamente conveniente.
AGL ASTE IMMOBILIARI SRL è la società di consulenza leader in Italia, con oltre 170 uffici su tutto il territorio, che segue il cliente in tutto il percorso relativo all'acquisto tramite asta giudiziaria grazie agli oltre 1.000 professionisti tra geometri, avvocati e commercialisti che gravitano all’interno della nostra rete.
Chiama subito il numero e fissa un appuntamento per ottenere la tua consulenza senza impegno e visita il nostro sito https://www.aglasteimmobiliari.it.
FILIALE TREVISO: Via Noalese 61N (zona Aereoporto)
FILIALE MESTRE: Piazzetta Olivotti 11 (si accede da via Degan, laterale di Via Piave)

Le foto pubblicate potrebbero non corrispondere all'immobile specifico, i documenti ufficiali sono visionabili in filiale.
https://www.aglasteimmobiliari.it/azienda

Caratteristiche

Piano T
Ascensore No
Stato Ottimo / Ristrutturato
Riscaldamento Autonomo, a radiatori, alimentato a gas

Servizi e accessori

Caminetto Cucina Esposizione esterna Impianto tv centralizzato Infissi esterni in vetro / legno

Posizione

Referente

AGL Treviso - Venezia

Storico

Pubblicato 18 Apr 2026
Aggiornato 20 Apr 2026
Sul mercato 3 giorni
ID Annuncio 128332366

Recensioni

Vedi tutte
P

Piero Borgia

4.7

Ho trovato la casa perfetta in pochissimo tempo grazie alla loro rapida risposta e all’ampia scelta di immobili disponibili. Mi hanno seguito passo dopo passo con molta cordialità e professionalità, r...

P

Patrizia Visconti

4.3

Se state cercando un'agenzia immobiliare affidabile, vi consiglio di affidarsi a chi vi supporta con entusiasmo e professionalità. Sono stata seguita passo passo durante l'acquisto della mia prima cas...