Vendita Villa

Villa

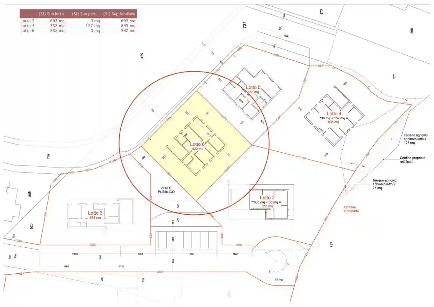
Il Pino No Number, Capolona, Arezzo

Prezzo
Buon Prezzo: 22% sotto la media
162
mq
5
Locali
5
Camere
2
Bagni

Recensisci questo Immobile

Devi essere registrato per lasciare una recensione.

Accedi

Nessuna recensione ancora. Sii il primo!

Descrizione

VENDESI NUOVA VILLA MONOFAMILIARE AD UN PIANO A CAPOLONA SU NUOVA LOTTIZZAZIONE Bellissimo progetto moderno e funzionale ad un piano di villa manofamiliare indipendente di oltre 162 mq composta da 3 camere, sala, cucina, due bagni, lavanderia, ripostiglio e box garage. Costruzione semplice da realizzare in C. A. con tamponature a cassetta dotata di riscaldamento e raffreddamento a pavimento, pompa calore impianto fotovoltaico 7 kw. Il prezzo è al rustico avanzato comprensivo di terreno, progetto architettonico, struttura in C. A. copertura completa di predisposizione impianto fotovoltaico, linea vita, murature, isolamento e impermiabilizzazione. Possibilità di personalizzazione del progetto. Completamente autonoma cadde A4++++.

Caratteristiche

Riscaldamento Autonomo

Posizione

Referente

I.A.E. srl

Storico

Pubblicato 18 Apr 2026
Aggiornato 27 Apr 2026
Sul mercato 11 giorni
ID Annuncio 128360786