Vendita Appartamento

Appartamento

Via Leopoldo Bozzi, 12, Corsico, Milano

Prezzo
62
mq
2
Locali
1
Camere
1
Bagni

Recensisci questo Immobile

Devi essere registrato per lasciare una recensione.

Accedi

Nessuna recensione ancora. Sii il primo!

Descrizione

AMPIO E LUMINOSO BILOCALE CON BALCONE NEL CUORE DI CORSICO

DESCRIZIONE PROGETTO GENERALE:
Il Progetto, nasce dopo un approfondito Studio e una Progettazione di un Complesso Immobiliare, che attraverso una ristrutturazione totale dei due edifici e di tutte le sue parti comuni, porterà alla realizzazione di un building moderno, mantenendo lo Stile del Palazzo dell'epoca, cercando di fondere l'anima ed il carattere storico dell'edificio con un concept più attuale e più contemporaneo, alla ricerca di un sincretismo architettonico tra i due stili, per esaltarne al massimo il risultato che definirà il carattere dell'opera, il Complesso sarà arricchito con particolari costruttivi di pregio, servizi d'eccellenza e di accoglienza, e avanzati Standard Abitativi.
Il Residence sarà Costituito da due Fabbricati, il primo quello più grande, esterno, è composto da 4 piani dove verranno realizzati tredici appartamenti. L'altro fabbricato, il secondo, più piccolo ed interno al cortile, appartato, silenzioso e riservato, disposto su due soli piani sarà composto da 10 bellissimi e ampi monolocali, di cui 5 al piano primo e 5 al piano terra, dotati di bellissimi giardini privati, separati da siepi sempre verdi.
Il Nuovo Complesso avrà lo stile, la forma e le caratteristiche di un vero e proprio Residence, con un compcet molto moderno, curato ed elegante, dotato di bellissimi spazi verdi alcuni a prato, altri con alberi e piante scenografiche, il tutto molto ben illuminato valorizzandone la bellezza anche di sera, donando all'intero Complesso uno scenario romantico, raffinato, contemporaneo ed elegante.
La realizzazione del Nuovo Complesso "Palazzo Crespi" nasce dall'idea di ridare vita ad un antico stabile, già adibito a locazione fin dall'inizio del secolo scorso, una destinazione che intendiamo portare ai giorni nostri, secondo una nuova dinamica di locazione più attuale e moderna, che si è indirizzata in questi ultimi anni soprattutto sugli affitti a breve termine. Proprio pensando a questa logica immobiliare da investimento e a questa esigenza, che abbiamo curato e realizzato questo Progetto, cercando di offrire delle Unità abitative altamente performanti con servizi innovativi mirati e di alto confort, in modo da offrire la più alta redditività possibile.

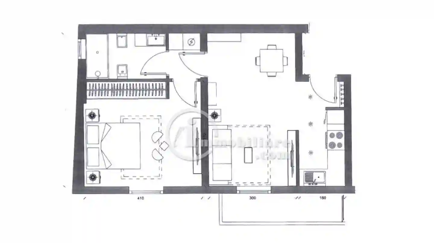
Scopri questo luminoso bilocale di 62 mq con balcone, completamente ristrutturato e pronto ad accoglierti!
Situato al primo piano l'appartamento offre un'ampia zona living con soggiorno e cucina a vista, perfetta per momenti di convivialità, con accesso diretto al balcone privato. La zona notte si compone di una graziosa camera da letto ed un bagno finestrato.
Inoltre vi è la possibilità di acquistare una cantina ed un posto auto.

Questo appartamento rappresenta un'opportunità unica per vivere in un ambiente nuovo e accogliente. Non perdere l'occasione di visitarlo!

*Descrizione ed immagini hanno valore puramente indicativo e non costituiscono elemento contrattuale.
Per maggiori informazioni chiamare al numero 02 4880 196

Caratteristiche

Piano 1
Ascensore Si
Stato Nuovo / In costruzione
Riscaldamento Autonomo, a pavimento, alimentazione elettrica

Posizione

Referente

L'Immobiliare.com - Buccinasco/Corsico

Storico

Pubblicato 19 Apr 2026
Aggiornato 29 Apr 2026
Sul mercato 10 giorni
ID Annuncio 128384742

Recensioni

Vedi tutte
S

Sandro Rocca

4.7

Ho trovato un'agenzia immobiliare molto cortese e disponibile a Buccinasco, con un’ampia scelta di immobili. Mi hanno seguito passo passo, aiutandomi a trovare l’appartamento perfetto per il mio nuovo...