Vendita Villa

Villa

Via Raschietti, 63, Montebelluna, Treviso

Prezzo
190
mq
5
Locali
3
Camere
3
Bagni

Recensisci questo Immobile

Devi essere registrato per lasciare una recensione.

Accedi

Nessuna recensione ancora. Sii il primo!

Descrizione

NOSTRA ESCLUSIVA. Guarda (Montebelluna), Via Raschietti, 63.
Bifamiliare di nuova costruzione in classe A4, su due livelli, finita chiavi in mano.
P. Terra: soggiorno con cucina separabile, lavanderia, bagno, ripostiglio, garage doppio e giardino di oltre 500 mq.
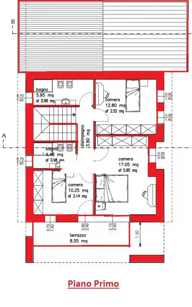
P. Primo: 3 camere (matrimoniale + 2 doppie), 2 bagni, terrazzo.

Caratteristiche

Stato Nuovo / In costruzione
Riscaldamento Autonomo, a pavimento, alimentato a fotovoltaico

Posizione

Referente

Agenzia Immobiliare Montecasa di Paolo Lellis

Storico

Pubblicato 20 Apr 2026
Aggiornato 28 Apr 2026
Sul mercato 9 giorni
ID Annuncio 128415074