Vendita Appartamento Luxury

Appartamento

Piazza San Babila, Milano, Milano

Prezzo
Buon Prezzo: 24% sotto la media
350
mq
5+
Locali
3
Camere
3+
Bagni

Recensisci questo Immobile

Devi essere registrato per lasciare una recensione.

Accedi

Nessuna recensione ancora. Sii il primo!

Descrizione

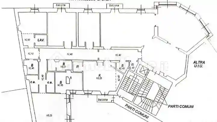
Proponiamo in vendita una soluzione unica nel suo genere in Via F. Sforza, foto e info in privato, la proprietà si completa con cantina, solaio e box di proprietà.

Contattateci per maggiori informazioni.

3498497270

Caratteristiche

Piano 3
Ascensore Si
Stato Ottimo / Ristrutturato

Servizi e accessori

Armadio a muro Fibra ottica Impianto di allarme Porta blindata VideoCitofono

Posizione

Zona: San Babila (Centro)

Referente

Target Home Milano

Storico

Pubblicato 21 Apr 2026
Aggiornato 29 Apr 2026
Sul mercato 8 giorni
ID Annuncio 128417620

Recensioni

Vedi tutte
E

Emma Migliore

4.7

Ho trovato l'ufficio perfetto per la mia attività grazie all'agenzia, che si è dimostrata competente e molto presente nella trattativa. Durante tutto il percorso, mi ha aiutata a gestire lo stress e a...

S

Silvana Costa

4.7

Stavo cercando un appartamento più grande per la mia famiglia in crescita e ho trovato questa agenzia che si è dimostrata molto professionale e disponibile. Sono stata seguita con attenzione e pazienz...

T

Tania Mariani

4.3

Fin dal primo incontro sono stata colpita dalla professionalità e attenzione ai dettagli dell’agenzia. Mi hanno seguita passo dopo passo, rendendo semplice ogni fase della vendita del locale commercia...

S

Silvano Conte

4.0

Se cercate un’agenzia immobiliare a Milano, consiglio di affidarsi a chi sa ascoltare e ha pazienza. Ho trovato professionali e sempre disponibili, che seguono ogni fase con attenzione e chiarezza. So...