Indietro
Vendita Rustico - Casale

Rustico - Casale

Offanengo, Cremona

Prezzo
Ottimo Affare: 50% sotto la media
425
mq
5+
Locali
5
Camere
3
Bagni

Recensisci questo Immobile

Devi essere registrato per lasciare una recensione.

Accedi

Nessuna recensione ancora. Sii il primo!

Descrizione

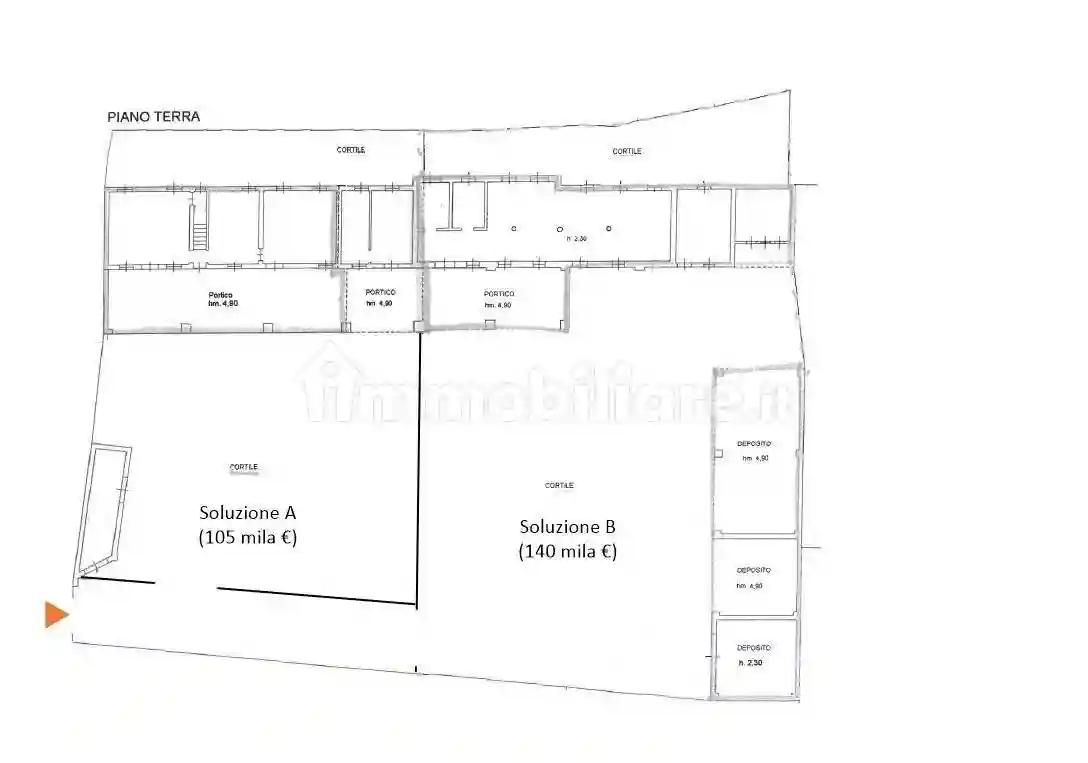
Offanengo, centro paese, cascina completamente da ristrutturare (individuata dalla lettera "B" su mappa).
Lotto di circa 850 mq.
Superficie edificabile circa 400 mq.
Ideale per casa singola o villa bifamiliare.
Attualmente esiste già un locale con tetto rifatto da adibire ad uso magazzino o box.
Richiesta: 140 mila €.
Per maggiori informazioni in merito ai nostri immobili pubblicati Vi consigliamo di inviare WhatsApp o telefonare direttamente al n. 335.8297885 (Geometra Passeri Paolo), in modo da avere risposte e delucidazioni sull'immobile in oggetto in tempo reale.
Ci sarà un colloquio veloce per fissare un appuntamento direttamente in loco senza passare in ufficio.
Sono gradite anche le e-mail (risposta entro 48 ore).
Alla pratica di mutuo, se volete, ci pensiamo noi!
PER VENDERE O AFFITTARE LA VOSTRA CASA siamo operativi nel Cremasco da 50 anni.
Non tutti i nostri immobili vengono pubblicati per ragioni di privacy. Passate dalla nostra agenzia in Crema, viale de Gasperi, 19 per molte altre soluzioni.
Per l'acquisto, permutiamo / ritiriamo il Vostro immobile. Perizie e valutazioni gratuite e non impegnative. Tel. 335.8297885.

Caratteristiche

Stato Da ristrutturare

Referente

Studio Casa Crema Nord

Storico

Pubblicato 23 Apr 2026
Aggiornato 29 Apr 2026
Sul mercato 7 giorni
ID Annuncio 128462334

Recensioni

Vedi tutte
L

Lucia Rusconi

4.7

Dopo aver avuto esperienze con altre agenzie, questa volta sono stata davvero colpita dalla trasparenza e chiarezza con cui mi hanno seguito. La vendita del locale è stata gestita in modo professional...

S

Susanna Conti

4.3

Se cercate un'agenzia immobiliare affidabile, il mio consiglio è di rivolgervi a chi ascolta davvero le vostre esigenze. Mi sono trovata molto bene perché sono stata seguita con attenzione e cura dei...

L

Letizia Piazza

4.0

Stavo cercando di vendere un appartamento di famiglia a Crema e avevo bisogno di qualcuno che conoscesse bene il mercato locale. Mi sono trovata subito molto bene, l’agenzia è stata rapida e molto com...

E

Eva Lodi

4.0

A differenza di altre esperienze passate, qui ho trovato un'assistenza efficiente e concreta. Sono stata seguita con tempestività e professionalità in ogni fase, dalla ricerca all’aspetto burocratico....