Vendita Appartamento

Appartamento

Via BERGAMO, 5, Laigueglia, Savona

Prezzo
Ottimo Affare: 33% sotto la media
132
mq
5+
Locali
3
Camere
2
Bagni

Recensisci questo Immobile

Devi essere registrato per lasciare una recensione.

Accedi

Nessuna recensione ancora. Sii il primo!

Descrizione

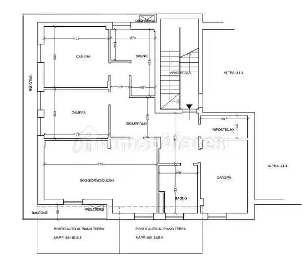
L'appartamento in asta situato nel comune di Laigueglia, in Via Bergamo, rappresenta un'opportunità unica per chi è alla ricerca di una soluzione abitativa spaziosa e confortevole. Con un prezzo di 456.255 euro, questo immobile di classe energetica C si estende su una superficie di 132 mq, suddivisi in sette vani.

L'appartamento dispone di due camere doppie e una camera singola, ideali per ospitare una famiglia numerosa o per chi desidera avere spazio extra per gli ospiti. I due bagni presenti all'interno dell'abitazione garantiscono comfort e funzionalità, mentre i due posti auto riservati sono un valore aggiunto per chi possiede due veicoli o desidera avere spazio per gli ospiti.

L'immobile si trova al primo piano di un edificio di quattro piani, garantendo tranquillità e riservatezza. L'ampio soggiorno rappresenta il cuore della casa, un ambiente luminoso e accogliente dove trascorrere piacevoli momenti in compagnia. L’esposizione principale a sud-ovest valorizza ulteriormente la luminosità degli ambienti, permettendo alla luce naturale di illuminare il soggiorno per gran parte della giornata, creando un’atmosfera calda e rilassante.

Gli ambienti dell'appartamento sono ben distribuiti e curati nei dettagli, con finiture di pregio e materiali di alta qualità. L’immobile è stato ristrutturato nel 2014, un intervento che ha contribuito a valorizzare ulteriormente gli spazi interni e a migliorarne la funzionalità e il comfort abitativo. La presenza di balconi, tra cui uno particolarmente funzionale e vivibile, permette di godere di una piacevole vista sul verde circostante e di respirare aria fresca e pulita. Questo spazio esterno risulta perfetto per godersi il soggiorno luminoso e per organizzare pranzi e cene all’aria aperta in totale relax, sfruttando al meglio l’ottima esposizione.

Dal punto di vista della posizione, l’immobile si distingue per la sua vicinanza al mare, situato a soli 150 metri, rendendolo ideale sia come abitazione principale sia come casa vacanze. La stazione ferroviaria si trova a circa 850 metri, garantendo collegamenti comodi e veloci con le principali località limitrofe. Inoltre, la fermata del pullman dista appena 150 metri, offrendo un’ulteriore soluzione pratica per gli spostamenti quotidiani.

La zona è particolarmente apprezzata per essere super collegata ai principali servizi, con la presenza nelle immediate vicinanze di bar, ristoranti e attività commerciali che rendono la vita quotidiana estremamente comoda e piacevole. Il centro storico è raggiungibile in circa 450 metri, permettendo di vivere appieno il fascino e l’autenticità del borgo senza rinunciare alla tranquillità della zona residenziale.

Infine, per chi necessita di spostamenti più ampi, il casello autostradale si trova a circa 6,5 km, rendendo l’appartamento ben collegato anche per viaggi fuori città.

In sintesi, l'appartamento in asta a Laigueglia rappresenta un'opportunità da non perdere per chi desidera una soluzione abitativa spaziosa e confortevole, in una zona tranquilla, ben servita e strategicamente collegata. Un vero gioiello immobiliare a un prezzo competitivo, pronto ad accogliere chiunque desideri vivere in un ambiente accogliente e familiare, a pochi passi dal mare e da tutti i principali servizi.

DISTANZE PRINCIPALI:
- Mare: 150 m
- Fermata del pullman: 150 m
- Centro storico: 450 m
- Stazione ferroviaria: 850 m
- Casello autostradale: 6,5 km

Caratteristiche

Piano 1
Ascensore No
Stato Ottimo / Ristrutturato
Riscaldamento Autonomo, a radiatori, alimentato a gas

Servizi e accessori

Cucina Esposizione esterna Impianto tv con parabola satellitare Infissi esterni in doppio vetro / PVC Porta blindata

Posizione

Referente

EmmeGi Real Estate S.r.l

Storico

Pubblicato 23 Apr 2026
Aggiornato 27 Apr 2026
Sul mercato 6 giorni
ID Annuncio 128490000

Recensioni

Vedi tutte
M

Margherita Borrelli

4.7

Durante tutto il processo mi sono sentita davvero seguita e messa a mio agio, come se avessi una vera alleata. L'agenzia si è distinta per la massima trasparenza e una conoscenza approfondita delle no...

A

Alice De Simone

4.7

Quello che mi ha colpito di più è stata l’attenzione ai piccoli dettagli e la pazienza nel ascoltare le mie esigenze. Mi sono trovata subito seguita passo dopo passo, senza stress, fino a trovare la c...

F

Federica Galli

4.0

Le mie esperienze precedenti con agenzie immobiliari erano state spesso complicate e poco chiare, ma questa volta è stato tutto diverso. Mi sono trovata subito seguita e supportata, con spiegazioni ch...