Vendita Appartamento

Appartamento

Via Dei Pensieri, Livorno, Livorno

Prezzo
156
mq
5
Locali
4
Camere
2
Bagni

Recensisci questo Immobile

Devi essere registrato per lasciare una recensione.

Accedi

Nessuna recensione ancora. Sii il primo!

Descrizione

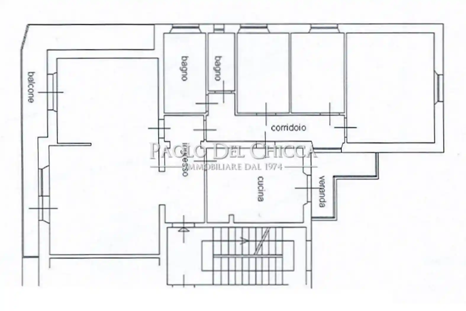
VIA DEI PENSIERI/STADIO - RIF. RD6870 - A pochi passi dal bellissimo lungomare di Livorno, proponiamo in condominio signorile completamente ristrutturato quattro anni fa, appartamento di ampia metratura, posto al secondo piano con ascensore e composto da: Ingresso in disimpegno, salone con ampio terrazzo e cucina abitabile dotata di pratico balcone verandato e piccola dispensa . La zona notte, separata da porta a vetri è composta da 4 camera da letto e due bagni entrambi finestrati. INFISSI IN PVC CON DOPPI VETRI. TERMOCENTRALE. VIDEOCITOFONO. Completano la proprietà un comodo garage al piano terra e posto auto all'interno del condominio. L'immobile prevede lavori di ammodernamento. La Royal Immobiliare è uno Studio Immobiliare, dinamico ed efficiente che opera principalmente nella città di Livorno e anche su tutto il territorio della Toscana . Si distingue per la professionalità dei propri collaboratori, sempre in grado di fornire alla clientela completa assistenza durante tutte le fasi delle operazioni immobiliari. L'agenzia fornisce un supporto completo e professionale con l'obiettivo di far coincidere il più possibile gli interessi del Venditore con quelli dell'Acquirente. Contattaci con fiducia e senza impegno. Ogni consulenza è totalmente gratuita .

Caratteristiche

Piano 2
Ascensore Si
Stato Buono / Abitabile
Riscaldamento Centralizzato, a radiatori, alimentato a metano

Servizi e accessori

Armadio a muro Cancello elettrico Esposizione doppia Fibra ottica Impianto tv centralizzato Infissi esterni in doppio vetro / PVC VideoCitofono

Posizione

Zona: Stadio (Ardenza, Stadio, La Rosa)

Referente

Royal Immobiliare Professional s.a.s.

Storico

Pubblicato 24 Apr 2026
Aggiornato 27 Apr 2026
Sul mercato 6 giorni
ID Annuncio 128491714

Recensioni

Vedi tutte
O

Ornella Borgese

5.0

Se cercate un'agenzia immobiliare seria e affidabile, non potete sbagliare! Mi sono trovata davvero bene perché sono stata seguita con grande professionalità e tanta attenzione, oltre a rispettare sem...

A

Antonella Capone

4.7

Appena entrata nel reparto affitti, sono stata colpita dalla vasta scelta di immobili disponibili, che mi ha permesso di trovare facilmente qualcosa che rispondeva alle mie esigenze. Sono stata seguit...

O

Oreste Nardone

4.3

Se cercate un’agenzia immobiliare seria, consiglio di affidarsi a chi conosce bene il territorio. Sono stato molto soddisfatto, hanno trovato la zona perfetta per il mio trasferimento in pensione, con...