Vendita Appartamento

Appartamento

Via Foligno, 90, Torino, Torino

Prezzo
70
mq
3
Locali
2
Camere
1
Bagni

Recensisci questo Immobile

Devi essere registrato per lasciare una recensione.

Accedi

Nessuna recensione ancora. Sii il primo!

Descrizione

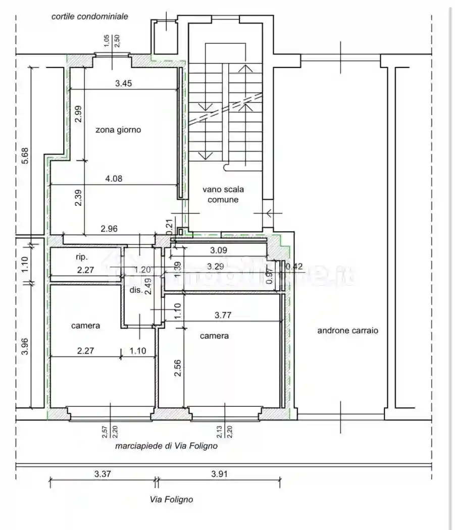
TRILOCALE RISTRUTTURATO IN VENDITA – ZONA LUCENTO

In Via Foligno 90, nel quartiere Lucento, Solutions Immobiliare propone in vendita trilocale di circa 70 mq situato al piano terra, attualmente in fase di completa ristrutturazione.

L’immobile verrà consegnato totalmente rinnovato, con finiture moderne e materiali di qualità, rappresentando una soluzione ideale sia come prima abitazione sia come investimento.

Composizione:

Ingresso su zona living con cucina a vista
Due camere da letto
Bagno finestrato

Caratteristiche principali:

Ristrutturazione totale
Impianti nuovi
Ottima distribuzione degli spazi
Piano terra comodo e facilmente accessibile

Posizione:
L’immobile si trova in una zona ben servita da mezzi pubblici, attività commerciali, scuole e aree verdi.

Prezzo interessante. Ottima opportunità anche per investimento.

Per ulteriori informazioni o per fissare una visita, contattare Solutions Immobiliare.

Caratteristiche

Piano T
Ascensore No
Stato Ottimo / Ristrutturato
Riscaldamento Centralizzato, a radiatori, alimentato a metano

Servizi e accessori

Esposizione doppia Fibra ottica Impianto tv centralizzato Infissi esterni in doppio vetro / PVC Porta blindata

Posizione

Zona: Lucento (Le Vallette, Lucento, Madonna di Campagna)

Referente

Solutions

Storico

Pubblicato 23 Apr 2026
Aggiornato 27 Apr 2026
Sul mercato 5 giorni
ID Annuncio 128507154

Recensioni

Vedi tutte
C

Cristina Margiotta

5.0

Ho scelto questa agenzia perché mi hanno colpito la loro conoscenza del mercato locale e la serietà dimostrata. Stata molto aiutata e seguita durante tutto il processo, sono stata subito presa e trova...

V

Valerio Cassano

4.7

Durante il processo mi sono sentito molto preso in mano, l’agenzia ha seguito ogni passo con grande professionalità e puntualità. Avevo bisogno di qualcuno che conoscesse bene le normative e rispondes...

N

Nicole Scognamiglio

4.7

Se state cercando un'agenzia immobiliare a Torino, vi consiglio di rivolgervi a questa: mi sono trovata davvero bene. Sono stata seguita con molta cortesia e attenzione, e hanno ascoltato tutte le mie...

V

Valeria Zampieri

4.3

Ho scelto questa agenzia perché mi sono subito colpita dalla loro puntualità e da come ascoltano davvero le esigenze del cliente. Stata molto bene seguita nel trovare un appartamento adatto ai miei fi...