Vendita Appartamento

Appartamento

Via Stazione, 88, Crema, Cremona

Prezzo
Ottimo Affare: 26% sotto la media
55
mq

Recensisci questo Immobile

Devi essere registrato per lasciare una recensione.

Accedi

Nessuna recensione ancora. Sii il primo!

Descrizione

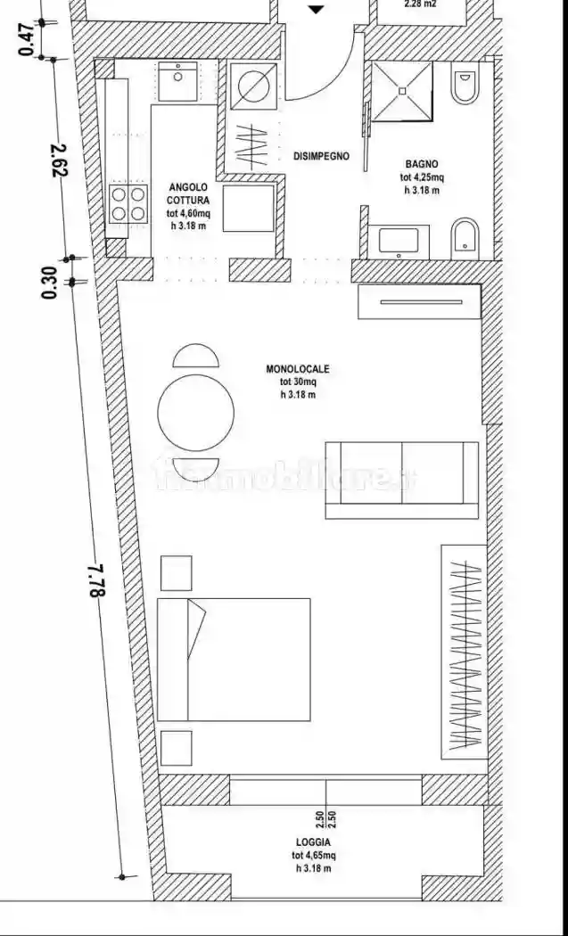
In zona centrale di Crema, proponiamo in vendita appartamento di circa 55 mq, caratterizzato da una distribuzione interna funzionale e ben organizzata, ideale sia come abitazione principale che come investimento.

L’immobile è composto da:

* soggiorno con angolo cottura in ambiente open space
* zona notte ben definita
* bagno con doccia
* disimpegno con possibilità di realizzare guardaroba e zona lavanderia
* loggia privata, fruibile come spazio esterno

Gli spazi sono stati studiati per garantire massima ottimizzazione della metratura e una vivibilità equilibrata tra zona giorno e zona notte.



SOLUZIONI DI ACQUISTO

* Vendita allo stato rustico, ideale per personalizzazione completa
* Possibilità di consegna completamente ristrutturata, con finiture moderne e accesso alle detrazioni fiscali in 10 anni



PLUS

* Posizione centrale e comoda ai principali servizi
* Possibilità di posto auto
* Ottima soluzione anche per investimento a reddito



Soluzione adatta a single, coppie o investitori alla ricerca di un immobile in posizione strategica, con possibilità di personalizzazione o acquisto chiavi in mano.

Caratteristiche

Piano T
Stato Da ristrutturare
Riscaldamento Autonomo

Servizi e accessori

Infissi esterni in vetro / PVC

Posizione

Agenzia Immobiliare

Storico

Pubblicato 25 Apr 2026
Aggiornato 28 Apr 2026
Sul mercato 4 giorni
ID Annuncio 128545796