Vendita Appartamento

Appartamento

Via Mac Mahon, 89, Milano, Milano

Prezzo
Buon Prezzo: 21% sotto la media
102
mq
3
Locali
2
Camere
1
Bagni

Recensisci questo Immobile

Devi essere registrato per lasciare una recensione.

Accedi

Nessuna recensione ancora. Sii il primo!

Descrizione

**Appartamento in Vendita a Milano - Un'opportunità da non perdere!**

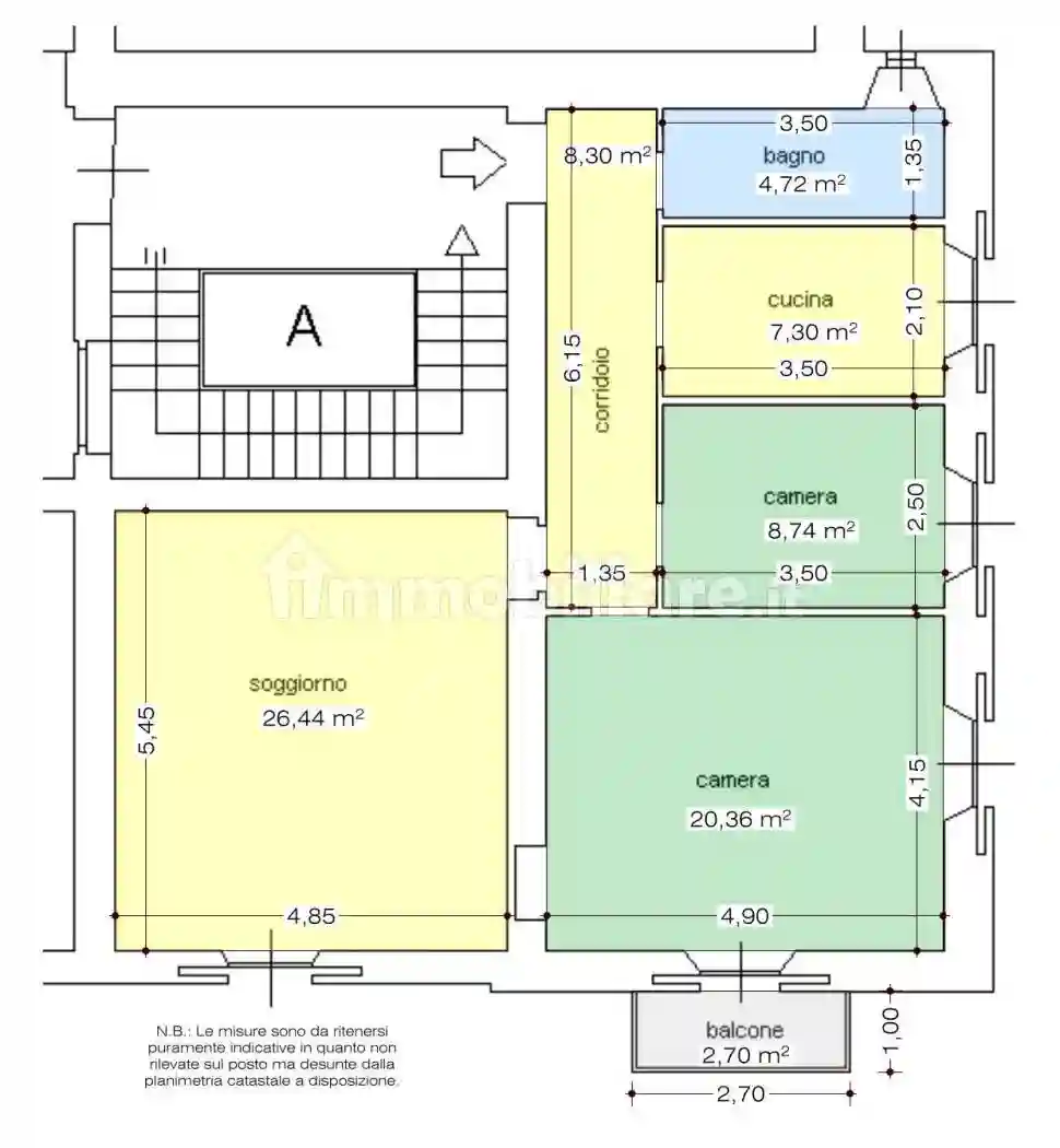
Scopri questo splendido appartamento in stabile civile, situato al primo piano senza ascensore. Con una superficie commerciale di 100 m², l'immobile è completamente ristrutturato e pronto per essere abitato. L'ingresso accogliente conduce a un ampio soggiorno luminoso, perfetto per momenti di relax o per intrattenere amici e familiari. La cucina è funzionale e ben attrezzata, ideale per chi ama cucinare.

La camera da letto molto spaziosa e la camera dei ragazzi, offrono un'atmosfera serena, mentre il bagno è moderno e dotato di tutti i comfort. Senza dimenticare il delizioso balconcino e la cantina che offrono un ulteriore spazio per riporre oggetti.

L'appartamento è in ottime condizioni e libero al rogito, rendendolo un'ottima scelta per chi cerca una casa pronta da abitare. La posizione è strategica: servito da mezzi pubblici in superficie e collegamenti diretti con il centro città, con le linee metropolitane milanesi a pochi passi. Negozi alimentari e numerosi centri commerciali nelle vicinanze rendono la vita quotidiana comoda e pratica. Le autostrade sono facilmente raggiungibili per tutte le direzioni.

Non perdere l'occasione di visitare questo appartamento unico!

Caratteristiche

Piano 1
Ascensore No
Stato Buono / Abitabile
Riscaldamento Centralizzato, a radiatori, alimentato a gas

Servizi e accessori

Cancello elettrico Esposizione doppia Impianto tv centralizzato Infissi esterni in doppio vetro / PVC Porta blindata

Posizione

Zona: Ghisolfa - Mac Mahon (Uptown, Cascina Merlata, Viale Certosa)

Referente

Immobiliare Lessona

Storico

Pubblicato 25 Apr 2026
Aggiornato 28 Apr 2026
Sul mercato 4 giorni
ID Annuncio 128550816

Recensioni

Vedi tutte
R

Rosa Montanari

4.7

Ricordo ancora quando ho trovato il magazzino perfetto per la mia azienda, tutto grazie alla loro assistenza. Mi sono sentita seguita passo dopo passo, con molta cortesia e trasparenza in ogni fase de...

S

Stefania Mauri

4.3

Quel dettaglio che mi ha colpito di più è stata la trasparenza con cui mi hanno seguito dall'inizio alla fine, facendomi sentire sempre al sicuro. Dopo anni di affitto, sono stata felice di trovare un...