Vendita Appartamento

Appartamento

Via Roma, Dresano, Milano

Prezzo
108
mq
3
Locali
2
Camere
2
Bagni

Recensisci questo Immobile

Devi essere registrato per lasciare una recensione.

Accedi

Nessuna recensione ancora. Sii il primo!

Descrizione

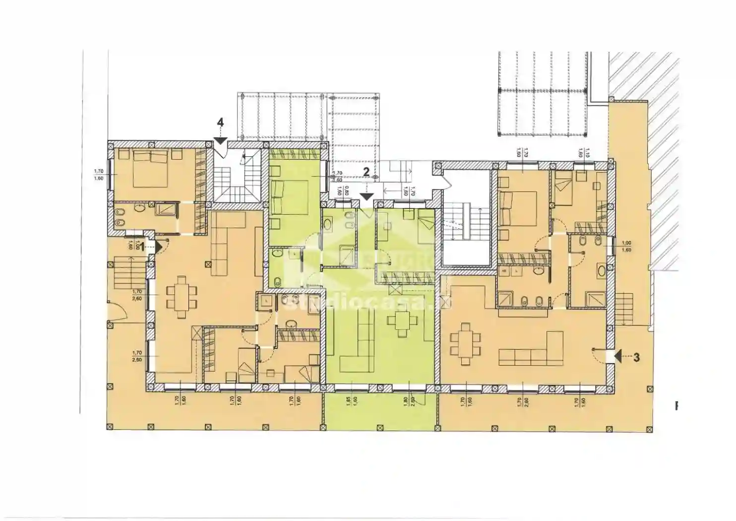
FUTURA NUOVA REALIZZAZIONE di appartamenti in una mini palazzina posizionata nel centro del paese di sole 6 famiglie senza spese condominiali, appartamento posto al piano terra con ingresso indipendente e porticato circostante l'abitazione composto da soggiorno con zona cucina che accedono ad un porticato, disimpegno notte con camera matrimoniale, doppi servizi e seconda camera. Completa la proprietà la cantina ed il posto auto privato. L'appartamento verrà realizzato nel rispetto di tutto le nuove normative di costruzione con ottime finiture. Euro 260.000 pagamenti personalizzarti. Consegna FINE 2026.
CLASSE A. Possibilità di seconda soluzione analoga ma con terza camera ad Euro 270.000
terza soluzione sempre con le due camera posta al piano primo ed ultimo con terrazzino € 260.000

Per informazioni, visite senza impegno e valutazione GRATUITA del tuo immobile chiama il n. 03731973901 / 3355696196 - Studio Casa Pandino Via Umberto I° 32. In alternativa scrivi una mail all'indirizzo pandino@studiocasa.it con la tua richiesta, verrai ricontattato in meno di 48 ore! Seguici anche sul nostro sito www.studiocasa.it

Caratteristiche

Piano T
Ascensore No
Stato Nuovo / In costruzione
Riscaldamento Autonomo, alimentato a fotovoltaico

Servizi e accessori

Impianto tv centralizzato Infissi esterni in doppio vetro / PVC Porta blindata

Posizione

Referente

Studio Casa Pandino

Storico

Pubblicato 29 Apr 2026
Aggiornato 30 Apr 2026
Sul mercato 0 giorni
ID Annuncio 128655128

Recensioni

Vedi tutte
C

Carla Fiore

4.7

La cura con cui sono stata seguita, soprattutto nella gestione dello stress durante la trattativa, mi ha colpito molto. Apprezzavo la tempestività nelle risposte e la disponibilità costante, che hanno...