Appartamento
Vendita
Vendita Appartamento

Appartamento

Via Erasmo Gattamelata, Padova, Padova

648.000 €
243
mq
5+
Locali
3
Camere
3
Bagni

Recensisci questo Immobile

Devi essere registrato per lasciare una recensione.

Accedi

Nessuna recensione ancora. Sii il primo!

Descrizione

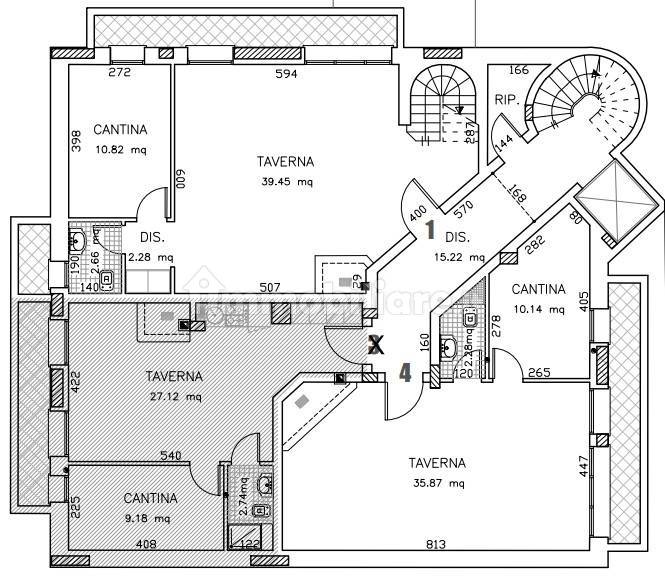
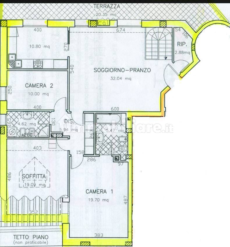
Nelle vicinanze del centro, nella degli zona ospedali, in un edificio di nuova realizzazione, che si sviluppa su due piani fuori terra ed uno interrato, composto da quattro unità, proponiamo un appartamento di 180 mq. calpestabili. L'appartamento si sviluppa sui piani interrato, terra e primo ed è composto nel modo seguente: al piano primo, da soggiorno, cucina, tre camere, due bagni e una terrazza di 20 mq.; al piano interrato, da una taverna di 55 mq. con bagno; al piano terra, da una lavanderia, un ripostiglio e un garage doppio. L'immobile ha il riscaldamento a pavimento, l'impianto fotovoltaico e i pannelli solari per la produzione di acqua calda. Le finiture sono di alta qualità: gli avvolgibili sono motorizzati, gli infissi e i serramenti sono realizzati artigianalmente su misura e sono dotati di vetrocamera basso emissivo e antisfondamento, i pavimenti, a scelta, possono essere in parquet o in monocottura. Il cancello carrabile i gli ingressi dei garage sono automatizzati. L'impianto di condizionamento è autonomo a split. La progettazione prevede spazi di verde. L'immobile è in classe energetica A.

Caratteristiche

Piano 1
Ascensore Si
Stato Nuovo / In costruzione
Riscaldamento Autonomo, a pavimento, alimentato a fotovoltaico

Servizi e accessori

Cancello elettrico Esposizione doppia Impianto di allarme Impianto tv centralizzato Infissi esterni in doppio vetro / legno Porta blindata Taverna VideoCitofono

Posizione

Zona: Portello - Ospedali (Scrovegni, Portello, Ospedali, Stanga, Pio X)

Referente

Il Domino Real Estate

Storico

Pubblicato 14 Jan 2026
Aggiornato 21 Feb 2026
Sul mercato 38 giorni
ID Annuncio 65679009

Recensioni

Vedi tutte
U

Umberto Lorenzi

4.3

Grazie di cuore per l'assistenza, sono stato davvero felice del servizio ricevuto. Ho trovato un'ampia scelta di immobili e l'intera gestione burocratica è stata rapida ed efficiente, il che ha reso t...

E

Emanuele Delfino

4.7

Ho trovato l’agenzia fantastica: sono rimasto impressionato dalla rapidità con cui sono stato seguito e aiutato a trovare il mio investimento immobiliare a Padova. La disponibilità e la professionalit...

O

Oreste Messina

4.7

Durante il processo mi sono sentito sempre seguito e supportato, grazie all’accompagnamento nelle visite e alla disponibilità a rispondere tempestivamente a ogni mia domanda. Ho trovato un’agenzia aff...

O

Olga Passeri

4.7

Ricordo ancora quel momento speciale quando ho trovata la casa dei miei sogni, grazie alla disponibilità e alla professionalità del team. Mi sono sentita seguita passo dopo passo con tanta attenzione...