Vendita Appartamento

Appartamento

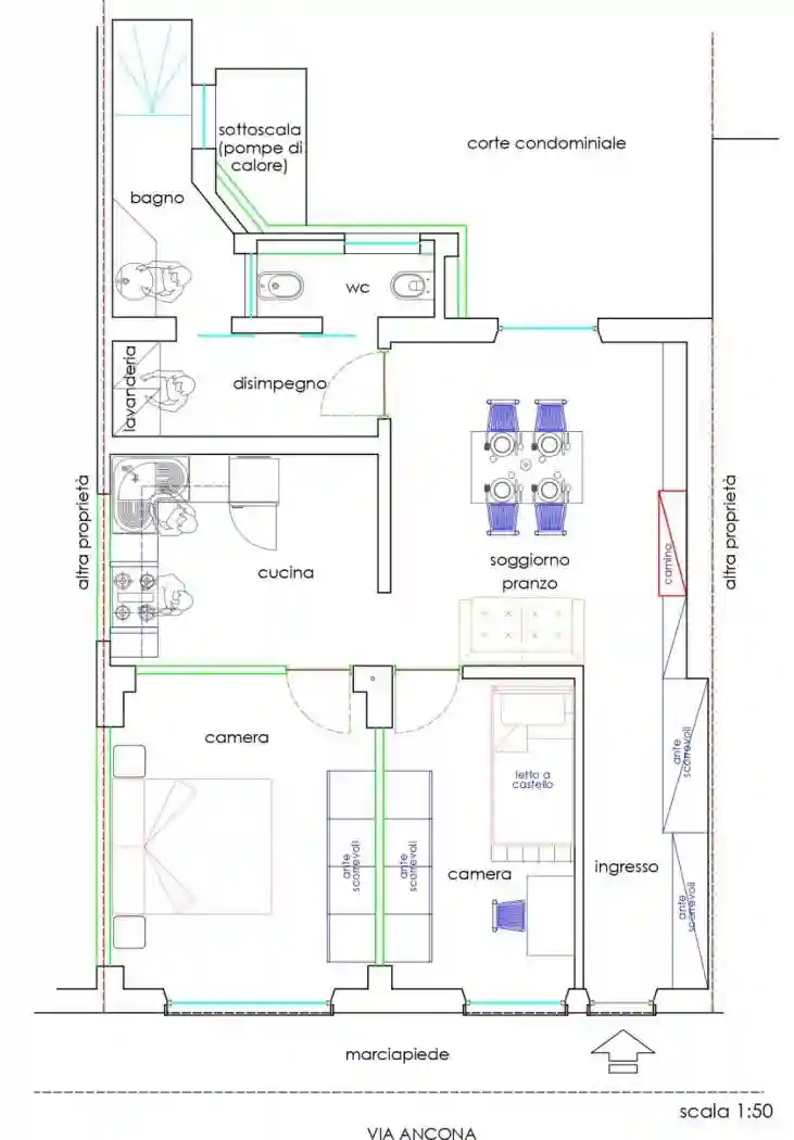
Via Ancona, 18, Porto Sant'Elpidio, Fermo

Prezzo
75
mq
3
Locali
2
Camere
2
Bagni

Recensisci questo Immobile

Devi essere registrato per lasciare una recensione.

Accedi

Nessuna recensione ancora. Sii il primo!

Descrizione

COMPLETAMENTE DA RISTRUTTURARE!!!!!
LAVORI INIZIATI!!!!!!!
Appartamento al piano terra, ingresso indipendente, senza condominio in palazzina di sole 3 unità.
50 mt dal mare e nel raggio di 300 mt troviamo attività commerciali: supermercati, banche, ristoranti, bar, pizzerie, uffcio postale, scuole.
Ottimo come residenza estiva da mettere a reddito.

Caratteristiche

Piano T
Stato Da ristrutturare
Riscaldamento Autonomo

Servizi e accessori

Cucina Esposizione est, ovest Infissi esterni in doppio vetro / PVC

Posizione

Agenzia Immobiliare

Storico

Pubblicato 13 Jan 2026
Aggiornato 19 May 2026
Sul mercato 127 giorni
ID Annuncio 68167345